- 44 m²
- 2 kamers
- 1825
Samenvatting
- Deze woning wordt sinds 2 oktober 2025 aangeboden door WoningVerkoop NL;
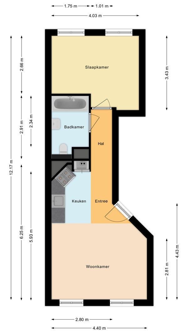
- De portiekflat heeft een woonoppervlakte van 44 m² en beschikt over 2 kamers, waarvan 1 slaapkamer;
- De woning is gebouwd In 1825 en ligt in de buurt Binnenstad in Roermond;
- De woning beschikt onder andere over de volgende voorzieningen: Bad, Bergruimte, Toilet.
Beschrijving
Overdracht
- Vraagprijs
- € 172.000 k.k.
- Aangeboden sinds
- 02-10-2025
- Status
- Beschikbaar
- Beschikbaar
- In overleg
- Onderhoudsstaat
- Goed
Oppervlakte en inhoud
- Woonoppervlakte
- 44 m²
- Inhoud
- 134 m³
VvE informatie
- Inschrijving KvK
- Ja
- Jaarlijkse vergadering
- Ja
- Periodieke bijdrage
- Ja (€ 100 per maand)
- Reservefonds aanwezig
- Ja
- Onderhoudsplan
- Ja
- Opstalverzekering
- Ja
Bouw
- Type woning
- Appartement
- Soort woning
- Portiekflat
- Soort bouw
- Bestaande bouw
- Bouwjaar
- 1825
Indeling
- Aantal kamers
- 2
- Aantal slaapkamers
- 1
- Aantal badkamers
- 1
- Aantal woonlagen
- 1
- Voorzieningen
-
- Bad
- Bergruimte
- Toilet
Buitenruimte
- Balkon
- Niet aanwezig
- Tuin
- Niet aanwezig
- Dakterras
- Niet aanwezig
Energie
- Isolatie
- Dubbele beglazing, Dakisolatie
- Verwarming
- CV-ketel
- Warm water
- CV-ketel
- Energielabel
- A+
Bergruimte
- Schuur/Berging
- Aanwezig
- Omschrijving
- Inpandig
Parkeergelegenheid
- Aanwezig
- Ja
- Soort parkeergelegenheid
- Openbaar
Garage
- Aanwezig
- Nee