Contact met de makelaar

Deze woning is gevonden buiten ons eigen netwerk. Met de knop hieronder kom je direct bij de aanbieder terecht.

Maashaven O.z.

Bekijk kaart
3072 HS Rotterdam (Afrikaanderwijk)
€ 575.000 k.k.
  • 127 m²
  • 4 kamers
  • 2004

Samenvatting

  • Deze woning wordt sinds 8 weken aangeboden door Woonvisie NVM Makelaars;
  • De galerijflat heeft een woonoppervlakte van 127 m² en beschikt over 4 kamers, waarvan 3 slaapkamers;
  • De woning is gebouwd In 2004 en ligt in de buurt Afrikaanderwijk in Rotterdam.

Beschrijving

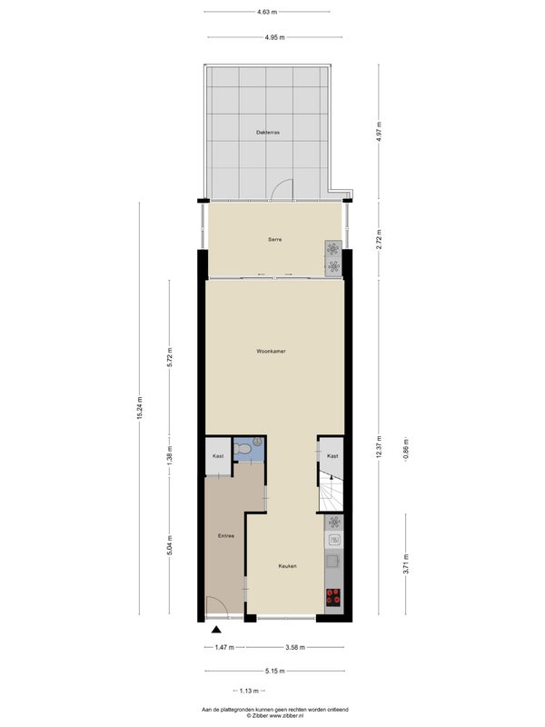
Deze modern afgewerkte maisonnette ligt aan de Maashaven in Rotterdam, vlakbij metrostation Maashaven en diverse bus- en tramverbindingen. In de buurt vindt u de Afrikaandermarkt, waar u wekelijks verse producten kunt kopen. Het nieuwe Nelson Mandelapark, met wandelpaden en sportplekken, wordt binnenkort aangelegd. De woning, van circa 127 m², beslaat de begane grond en eerste verdieping met een lichte, open indeling. De keuken is uitgerust met moderne apparatuur, terwijl de begane grond vloerverwarming heeft. Boven zijn drie slaapkamers, inclusief een master bedroom met douchecabine. Aan de achterzijde bevindt zich een oostelijk terras met toegang tot de parkeergarage. De woning is volledig geïsoleerd en heeft energielabel A+. Een actieve VvE en maandelijks bijdrage van € 229,42 zijn ook van toepassing.

Overdracht

Vraagprijs
€ 575.000 k.k.
Aangeboden sinds
24-11-2025
Status
Beschikbaar
Beschikbaar
Per direct

Oppervlakte en inhoud

Woonoppervlakte
127 m²

Bouw

Type woning
Appartement
Soort woning
Galerijflat
Soort bouw
Bestaande bouw
Bouwjaar
2004

Indeling

Aantal kamers
4
Aantal slaapkamers
3
Aantal badkamers
1

Buitenruimte

Dakterras
Niet aanwezig

Energie

Energielabel
A+
Meld een probleem met deze woning