Contact met de makelaar

Deze woning is gevonden buiten ons eigen netwerk. Met de knop hieronder kom je direct bij de aanbieder terecht.

Nieuw

Bovenstraat

Bekijk kaart
3077 BC Rotterdam (Oud IJsselmonde)
€ 479.500 k.k.
  • 126 m²
  • 4 kamers
  • 1913

Samenvatting

  • Deze woning wordt sinds 16 december 2025 aangeboden door Woonvisie NVM Makelaars;
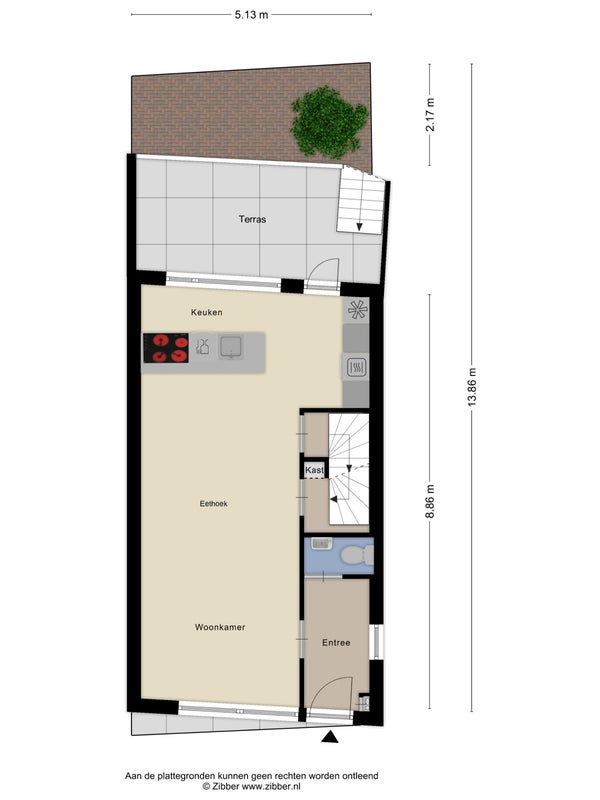
  • De galerijflat heeft een woonoppervlakte van 126 m² en beschikt over 4 kamers, waarvan 3 slaapkamers;
  • De woning is gebouwd In 1913 en ligt in de buurt Oud IJsselmonde in Rotterdam.

Beschrijving

Overdracht

Vraagprijs
€ 479.500 k.k.
Aangeboden sinds
16-12-2025
Status
Beschikbaar
Beschikbaar
In overleg

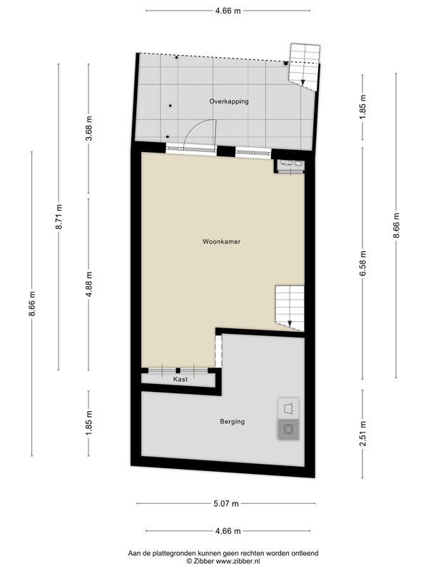
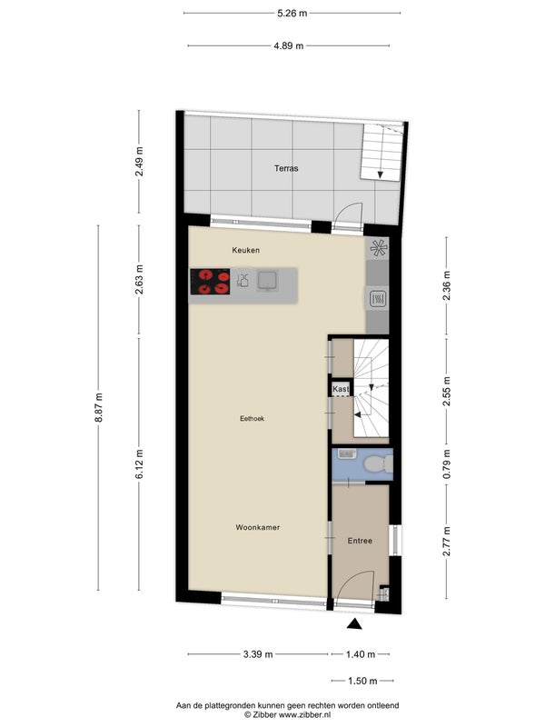
Oppervlakte en inhoud

Woonoppervlakte
126 m²
Perceeloppervlakte
72 m²

Bouw

Type woning
Appartement
Soort woning
Galerijflat
Soort bouw
Bestaande bouw
Bouwjaar
1913

Indeling

Aantal kamers
4
Aantal slaapkamers
3
Aantal badkamers
1

Buitenruimte

Dakterras
Niet aanwezig

Energie

Energielabel
C
Meld een probleem met deze woning