Contact met de makelaar

Deze woning is gevonden buiten ons eigen netwerk. Met de knop hieronder kom je direct bij de aanbieder terecht.

Nieuw

Wevershoekstraat

Bekijk kaart
3081 PB Rotterdam (Zuidplein)
€ 199.500 k.k.
  • 47 m²
  • 2 kamers
  • 1951

Samenvatting

  • Deze woning wordt sinds 19 januari 2026 aangeboden door Schildtvoorde NVM Makelaardij;
  • De galerijflat heeft een woonoppervlakte van 47 m² en beschikt over 2 kamers, waarvan 1 slaapkamer;
  • De woning is gebouwd In 1951 en ligt in de buurt Zuidplein in Rotterdam.

Beschrijving

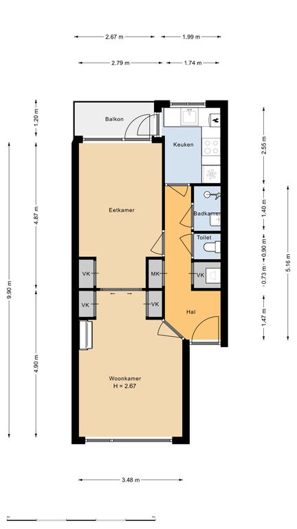
Dit sfeervolle 2-kamer appartement met vrij uitzicht ligt tegenover Winkelcentrum Zuidplein. De woning beschikt over een ruime woonkamer aan de voorzijde, een slaapkamer aan de achterzijde met toegang tot een balkon, en een keuken met inbouwapparatuur. Het appartement is voorzien van centrale verwarming en kunststof kozijnen met dubbele beglazing. De locatie is ideaal, met groen uitzicht en nabijgelegen voorzieningen zoals scholen, een zwembad en het Ahoy-complex. De woning heeft een gebruiksoppervlakte van ca. 47 m² en een balkon van ca. 3 m², met een totale inhoud van ca. 150 m³. De Vereniging van Eigenaren is recent opgericht met een maandelijkse bijdrage van € 124,15. Oplevering in overleg. Onder de koopovereenkomst geldt een ouderdoms- en asbestclausule.

Overdracht

Vraagprijs
€ 199.500 k.k.
Aangeboden sinds
19-01-2026
Status
Beschikbaar
Beschikbaar
Per direct

Oppervlakte en inhoud

Woonoppervlakte
47 m²

Bouw

Type woning
Appartement
Soort woning
Galerijflat
Soort bouw
Bestaande bouw
Bouwjaar
1951

Indeling

Aantal kamers
2
Aantal slaapkamers
1
Aantal badkamers
1

Buitenruimte

Dakterras
Niet aanwezig

Energie

Energielabel
A
Meld een probleem met deze woning