- 116 m²
- 5 kamers
- 1938
Samenvatting
- Deze woning wordt sinds 15 januari 2026 aangeboden door DWM Makelaardij;
- De bovenwoning heeft een woonoppervlakte van 116 m² en beschikt over 5 kamers, waarvan 4 slaapkamers;
- De woning is gebouwd In 1938 en ligt in de buurt Oud Charlois in Rotterdam.
Beschrijving
Te koop: zeer ruime bovenwoning met 4 slaapkamers en 3 balkons aan de Spechtstraat in Rotterdam (Charlois).
Deze lichte hoekwoning biedt een royale woonkamer, moderne keuken, luxe badkamer en een volledig afgewerkte zolderverdieping. Dankzij de hoekligging is er veel natuurlijke lichtinval en zijn er maar liefst drie balkons aanwezig. De woning ligt in een rustige straat in Oud-Charlois, nabij het Zuiderpark, de Boergoensevliet en diverse voorzieningen.
Indeling
Begane grond
Entree met trapopgang naar de eerste verdieping.
Eerste verdieping
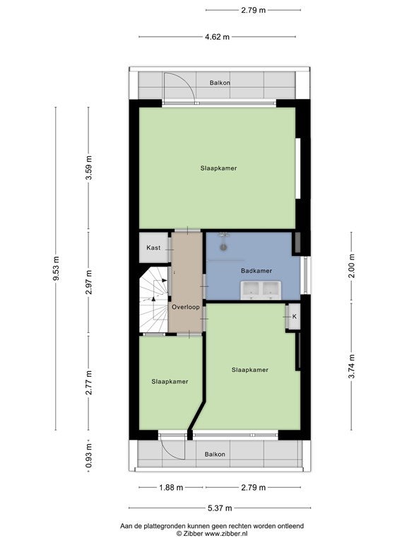
Overloop met toegang tot de woonkamer, toiletruimte en trap naar de tweede verdieping.
De ruime woonkamer is voorzien van laminaat, strak stucwerk en inbouwverlichting. Aan de achterzijde bevindt zich de open U-keuken met diverse inbouwapparatuur (keramische kookplaat, koelkast, vriezer, vaatwasmachine) en toegang tot balkon I.
Tweede verdieping
Overloop met vaste kast (wasmachine-aansluiting) en toegang tot alle vertrekken.
– Slaapkamer aan de achterzijde met toegang tot balkon II.
– Luxe badkamer met inloopdouche, dubbele wastafel, designradiator en moderne betegeling.
– Was-/strijkkamer met inbouwkast.
– Slaapkamer aan de voorzijde met toegang tot balkon III.
– Kleinere slaapkamer aan de voorzijde met toegang tot balkon III.
Zolderverdieping
Open zolderruimte met vaste trap en dakkapel aan de achterzijde, ideaal als extra slaapkamer.
Bijzonderheden:
-3 balkons
-Levendige locatie in Rotterdam-Charlois
-VVE bijdrage ca €150 p.m.
-Energielabel D
-Ouderdomsclausule van toepassing
-Asbestclausule van toepassing
-Oplevering in overleg
Toelichtingsclausule NEN2580: De meetinstructie is gebaseerd op de NEN2580. Deze meetinstructie zorgt voor een eenduidige manier van meten om de gebruiksoppervlakte aan te geven. Verschillen in meetuitkomsten kunnen optreden door interpretatieverschillen, afrondingen of beperkingen tijdens de meting.
Deze informatie is met de nodige zorgvuldigheid samengesteld. Onzerzijds wordt echter geen enkele aansprakelijkheid aanvaard voor enige onvolledigheid, onjuistheid of anderszins, dan wel de gevolgen daarvan. Alle opgegeven maten en oppervlakten zijn indicatief.
Overdracht
- Vraagprijs
- € 345.000 k.k.
- Aangeboden sinds
- 15-01-2026
- Status
- Beschikbaar
- Beschikbaar
- In overleg
- Onderhoudsstaat
- Goed
Oppervlakte en inhoud
- Woonoppervlakte
- 116 m²
- Inhoud
- 385 m³
VvE informatie
- Inschrijving KvK
- Ja
- Periodieke bijdrage
- Ja (€ 150 per maand)
- Opstalverzekering
- Ja
Bouw
- Type woning
- Appartement
- Soort woning
- Bovenwoning, Dubbel bovenhuis
- Soort bouw
- Bestaande bouw
- Bouwjaar
- 1938
- Ligging
-
- Aan een rustige weg
- In een woonwijk
- Beschut gelegen
Indeling
- Aantal kamers
- 5
- Aantal slaapkamers
- 4
- Aantal badkamers
- 1
- Aantal woonlagen
- 4
- Verdieping
- 2
- Voorzieningen
-
- Douche
- Toilet
Buitenruimte
- Balkon
- Aanwezig
- Dakterras
- Niet aanwezig
Energie
- Isolatie
- Vloerisolatie
- Verwarming
- CV-ketel
- Warm water
- CV-ketel
- Energielabel
- D
Parkeergelegenheid
- Aanwezig
- Ja
- Soort parkeergelegenheid
- Openbaar
Garage
- Aanwezig
- Nee