Contact met de makelaar

Deze woning is gevonden buiten ons eigen netwerk. Met de knop hieronder kom je direct bij de aanbieder terecht.

Nieuw

Wevershoekstraat 49 C

Bekijk kaart
3081 PB Rotterdam (Zuidplein)
€ 199.500 k.k.
  • 47 m²
  • 2 kamers
  • 1951

Samenvatting

  • Deze woning wordt sinds 8 januari 2026 aangeboden door Schildtvoorde;
  • De portiekflat heeft een woonoppervlakte van 47 m² en beschikt over 2 kamers, waarvan 1 slaapkamer;
  • De woning is gebouwd In 1951 en ligt in de buurt Zuidplein in Rotterdam.

Beschrijving

STARTERS OPGELET!

Sfeervol 2-kamer appartement met vrij uitzicht, direct tegenover Winkelcentrum Zuidplein!
Wat wil je nog meer?

Zo krijg je de beschikking over een ruime woonkamer aan de voorzijde met vrij uitzicht, ruime slaapkamer aan de achterzijde met een balkon, keuken voorzien van inbouwapparatuur, centrale verwarming middels cv-ketel en kunststofkozijnen voorzien van dubbele beglazing (deels HR ++).

De locatie is uitstekend te noemen! Je hebt uitzicht over veel groen met een voetbalveld voor de kinderen. Wanneer je de straat oversteekt, wandel je zo Winkelcentrum Zuidplein binnen, met daarachter het bus- en metrostation. Hier tref je ook het zwembad, Ahoy en leuke tentjes. Ter hoogte van het Ahoy-complex ligt het Zuiderpark. Verder tref je in de nabije omgeving scholen en alle voorzieningen die je maar wensen kunt en via de Maastunnel en Erasmusbrug bent u zo in het centrum van Rotterdam.

Kom je snel kijken? Welkom voor een vrijblijvende bezichtiging!

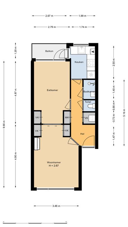
Indeling:

  • Via gesloten portiek toegang tot de woningentree op de eerste verdieping.

Tweede verdieping:

  • Gang voorzien van laminaatvloer; vaste kast met meterkast en een vaste kast met de aansluiting voor de wasmachine
    toegang tot de verschillende vertrekken.
  • Gezellige, lichte woonkamer aan de voorzijde voorzien van laminaatvloer, vaste kasten, schuifdeuren naar de
    slaapkamer en vrij uitzicht;
  • Keuken gelegen aan de achterzijde in hoekopstelling en voorzien van diverse inbouwapparatuur waaronder een
    koel/vries combinatie, kookplaat, afzuigkap, oven en vaatwasautomaat. Tevens bevindt zich in de keuken de cv-
    opstelling en deze toegang tot het balkon
  • Slaapkamer aan de achterzijde met vaste kasten, laminaatvloer en toegang het balkon aan de achterzijde;
  • Badkamer voorzien van douche en wastafel;
  • Toilet;
  • Balkon gelegen op het noorden met zicht op de binnenplaats.

Algemeen:

  • Eigen grond en bouwjaar 1951;
  • De woning is geheel voorzien van kunststof raamkozijnen met dubbele beglazing;
  • Verwarming en warmwater via combiketel (Nefit);
  • De VVE is recent opgericht en heeft een maandelijkse bijdrage van € 124.15
  • Energielabel A.

Gebruiksoppervlakten en inhoud:

  • Wonen ca. 47 m²
  • balkon ca. 3 m²
  • Inhoud ca. 150 m³

Projectnotaris is van toepassing

Oplevering : in overleg

Gezien het bouwjaar van de woning wordt er in de koopovereenkomst een ouderdomsclausule en asbestclausule opgenomen.

Verkoper heeft de woning niet feitelijk zelf gebruikt en dit zal worden opgenomen in de koopakte. Geen vragenlijst en lijst van zaken aanwezig!!!

In diverse wijken is er sprake van een opkoopbescherming. De opkoopbescherming houdt in een verbod om, na het aankopen van een woning vanaf een januari tweeduizend twee en twintig (1 januari 2022), deze te verhuren zonder vergunning, tenzij aan bepaalde voorwaarden is voldaan.
Meer informatie hierover is terug te vinden op de website van de Gemeente
Rotterdam (******).

De koopovereenkomst wordt conform het NVM model opgemaakt met de daarbij behorende clausules die gebruikelijk zijn voor een woning uit deze bouwperiode.

De verstrekte informatie moet beschouwd worden als een uitnodiging tot het doen van een bod of om in onderhandeling te treden.

Deze informatie is door ons met de nodige zorgvuldigheid samengesteld. Onzerzijds wordt echter geen enkele aansprakelijkheid aanvaard voor enige onvolledigheid, onjuistheid of anderszins, dan wel de gevolgen daarvan. Alle opgegeven maten en oppervlakten zijn indicatief. Van toepassing zijn de NVM voorwaarden.

Koopovereenkomst pas rechtsgeldig na ondertekening:
Een mondelinge overeenstemming tussen de particuliere verkoper en de particuliere koper is niet rechtsgeldig. Met andere woorden: er is geen koop. Er is pas sprake van een rechtsgeldige koop als de particuliere verkoper en de particuliere koper de koopovereenkomst hebben ondertekend. Dit vloeit voort uit artikel 7:2 Burgerlijk Wetboek. Een bevestiging van de mondelinge overeenstemming per e-mail of een toegestuurd concept van de koopovereenkomst wordt overigens niet gezien als een 'ondertekende koopovereenkomst'.

Toelichtingsclausule NEN2580:
De Meetinstructie is gebaseerd op de NEN2580. De Meetinstructie is bedoeld om een meer eenduidige manier van meten toe te passen voor het geven van een indicatie van de gebruiksoppervlakte. De Meetinstructie sluit verschillen in meetuitkomsten niet volledig uit, door bijvoorbeeld interpretatieverschillen, afrondingen of beperkingen bij het uitvoeren van de meting.

Reageer op tijd op nieuw woningaanbod

Meer dan de helft van de reacties komt binnen 48 uur. Ontvang direct notificaties bij nieuw aanbod en reageer sneller met Pararius+.

Probeer Pararius+ 14 dagen € 0,01

Overdracht

Vraagprijs
€ 199.500 k.k.
Aangeboden sinds
08-01-2026
Status
Beschikbaar
Beschikbaar
In overleg
Onderhoudsstaat
Goed

Oppervlakte en inhoud

Woonoppervlakte
47 m²
Inhoud
150 m³

VvE informatie

Inschrijving KvK
Ja
Jaarlijkse vergadering
Ja
Periodieke bijdrage
Ja (€ 124 per maand)
Reservefonds aanwezig
Nee
Onderhoudsplan
Nee
Opstalverzekering
Ja

Bouw

Type woning
Appartement
Soort woning
Portiekflat, Appartement
Soort bouw
Bestaande bouw
Bouwjaar
1951
Ligging
  • Aan een rustige weg
  • In een woonwijk
  • Vrij uitzicht

Indeling

Aantal kamers
2
Aantal slaapkamers
1
Aantal badkamers
1
Aantal woonlagen
1
Verdieping
2
Voorzieningen
  • Douche
  • Toilet

Buitenruimte

Balkon
Niet aanwezig
Tuin
Niet aanwezig
Dakterras
Niet aanwezig

Energie

Isolatie
Dubbele beglazing
Verwarming
CV-ketel
Warm water
CV-ketel
Cv-ketel
Nefit (Gas, uit 2019, Eigendom)
Energielabel
A

Parkeergelegenheid

Aanwezig
Ja
Soort parkeergelegenheid
Betaald

Garage

Aanwezig
Nee
Meld een probleem met deze woning