Contact met de makelaar

Deze woning is gevonden buiten ons eigen netwerk. Met de knop hieronder kom je direct bij de aanbieder terecht.

Nieuw

St. Annastraat

Bekijk kaart
4524 JE Sluis (Sluis)
€ 875.000 k.k.
  • 162 m²
  • 4 kamers
  • 2022

Samenvatting

  • Deze woning wordt sinds 22 januari 2026 aangeboden door De Dobbelaere Makelaars;
  • De galerijflat heeft een woonoppervlakte van 162 m² en beschikt over 4 kamers, waarvan 3 slaapkamers;
  • De woning is gebouwd In 2022 en ligt in de buurt Sluis in Sluis.

Beschrijving

Aan de Sint Annastraat 10 in Sluis vindt u een prachtig penthouse dat net beschikbaar is gekomen. Dit instapklare penthouse met twee verdiepingen biedt de voordelen van een huis, maar het gemak van een appartement, in een kleinschalig gebouw met slechts 16 units. Het ligt op een rustige hoek aan de achterzijde en heeft grote raampartijen met uitzicht over de polders.

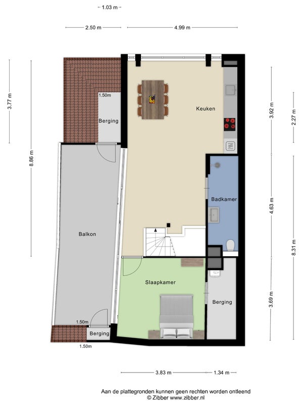
De begane grond heeft een ruime hal, een woonkamer met vloerverwarming, een luxe open keuken en een slaapkamer met en-suite badkamer. De eerste verdieping heeft nog een slaapkamer, ruimte voor een werkkamer, en een badkamer. Genieten doet u op een van de twee ruime terrassen. Het penthouse is recent opgeleverd, met een woonoppervlakte van ca. 162 m² en energielabel A. Pluspunten zijn onder andere de lift, een eigen parkeerplaats en berging.

Overdracht

Vraagprijs
€ 875.000 k.k.
Aangeboden sinds
22-01-2026
Status
Beschikbaar
Beschikbaar
Per direct

Oppervlakte en inhoud

Woonoppervlakte
162 m²

Bouw

Type woning
Appartement
Soort woning
Galerijflat
Soort bouw
Bestaande bouw
Bouwjaar
2022

Indeling

Aantal kamers
4
Aantal slaapkamers
3
Aantal badkamers
2

Buitenruimte

Dakterras
Niet aanwezig

Energie

Energielabel
A
Meld een probleem met deze woning