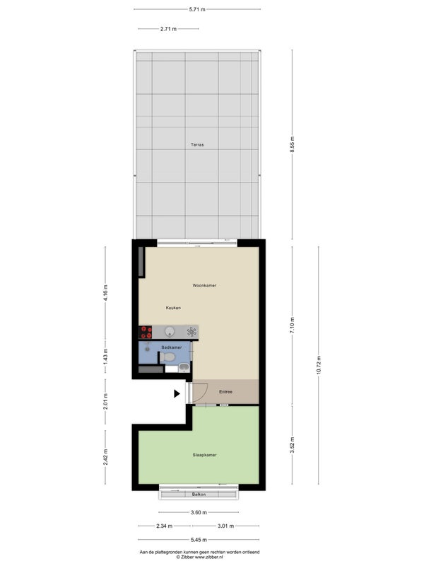
- 52 m²
- 2 kamers
- 2008
Samenvatting
- Deze woning wordt sinds 25 oktober 2025 aangeboden door Stadshuys O.G.;
- De bovenwoning heeft een woonoppervlakte van 52 m² en beschikt over 2 kamers, waarvan 1 slaapkamer;
- De woning is gebouwd In 2008 en ligt in de buurt Zuilen-Noord in Utrecht;
- De woning beschikt onder andere over de volgende voorzieningen: Kabel TV, Mechanische ventilatie, Douche, Toilet.
Beschrijving
Overdracht
- Vraagprijs
- € 289.000 k.k.
- Aangeboden sinds
- 25-10-2025
- Status
- Beschikbaar
- Beschikbaar
- In overleg
- Onderhoudsstaat
- Goed
Oppervlakte en inhoud
- Woonoppervlakte
- 52 m²
- Inhoud
- 170 m³
VvE informatie
- Inschrijving KvK
- Ja
- Jaarlijkse vergadering
- Ja
- Periodieke bijdrage
- Ja (€ 80 per maand)
- Reservefonds aanwezig
- Ja
- Onderhoudsplan
- Ja
- Opstalverzekering
- Ja
Bouw
- Type woning
- Appartement
- Soort woning
- Bovenwoning, Appartement
- Soort bouw
- Bestaande bouw
- Bouwjaar
- 2008
- Ligging
-
- Aan een rustige weg
- In een woonwijk
- Beschut gelegen
- Vrij uitzicht
Indeling
- Aantal kamers
- 2
- Aantal slaapkamers
- 1
- Aantal badkamers
- 1
- Aantal woonlagen
- 1
- Voorzieningen
-
- Kabel TV
- Mechanische ventilatie
- Douche
- Toilet
Buitenruimte
- Balkon
- Niet aanwezig
- Tuin
- Aanwezig (51 m², gelegen op het zuidoosten)
- Tuinbeschrijving
- zonneterras
- Dakterras
- Niet aanwezig
Energie
- Isolatie
- Dubbele beglazing, Vloerisolatie, Volledig geïsoleerd, HR glas, Dakisolatie, Muurisolatie
- Verwarming
- CV-ketel
- Warm water
- CV-ketel
- Energielabel
- A
Parkeergelegenheid
- Aanwezig
- Ja
- Soort parkeergelegenheid
- Openbaar
Garage
- Aanwezig
- Nee