Contact met de makelaar

Deze woning is gevonden buiten ons eigen netwerk. Met de knop hieronder kom je direct bij de aanbieder terecht.

Gouden Leeuwplein

Bekijk kaart
5801 MN Venray (Centrum)
€ 339.000 k.k.
  • 94 m²
  • 3 kamers
  • 2010

Samenvatting

  • Deze woning wordt sinds 7 weken aangeboden door Hauzer & Partners;
  • De galerijflat heeft een woonoppervlakte van 94 m² en beschikt over 3 kamers, waarvan 2 slaapkamers;
  • De woning is gebouwd In 2010 en ligt in de buurt Centrum in Venray.

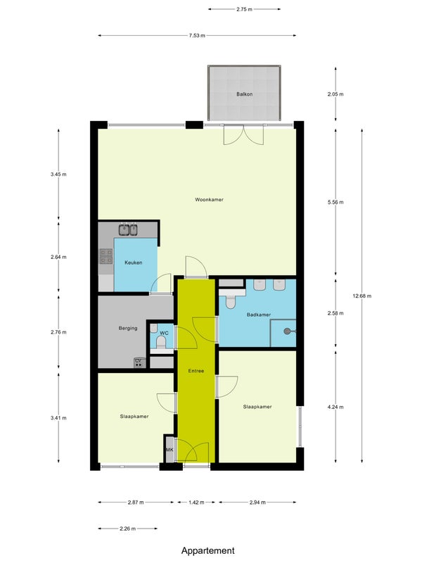
Beschrijving

Welkom in het hart van Venray, waar dit mooie appartement op de 3e verdieping van de Gouden Leeuwtoren u verwelkomt met een prachtig uitzicht over de stad. Bij binnenkomst valt het daglicht meteen op en de hal leidt u naar twee slaapkamers, een apart toilet, een moderne badkamer en een open keuken. Het appartement heeft een eigen parkeerplaats en een privéberging, en het energielabel A draagt bij aan comfortabele woonlasten.

De keuken, uit 2010, is functioneel en goed uitgerust. De woonkamer is ruim en licht, met panoramisch uitzicht. Beide slaapkamers zijn afgewerkt met veel daglicht. Het balkon van 6 m² biedt een mooi zicht op het Gouden Leeuwplein. Met een centrale ligging en dit wooncomfort, bent u verzekerd van een fijn thuis.

Overdracht

Vraagprijs
€ 339.000 k.k.
Aangeboden sinds
28-11-2025
Status
Beschikbaar
Beschikbaar
Per direct

Oppervlakte en inhoud

Woonoppervlakte
94 m²

Bouw

Type woning
Appartement
Soort woning
Galerijflat
Soort bouw
Bestaande bouw
Bouwjaar
2010

Indeling

Aantal kamers
3
Aantal slaapkamers
2
Aantal badkamers
1

Buitenruimte

Dakterras
Niet aanwezig
Meld een probleem met deze woning