Contact met de makelaar

Deze woning is gevonden buiten ons eigen netwerk. Met de knop hieronder kom je direct bij de aanbieder terecht.

Gouden Leeuwplein

Bekijk kaart
5801 MN Venray (Centrum)
€ 435.000 k.k.
  • 135 m²
  • 3 kamers
  • 2010

Samenvatting

  • Deze woning wordt sinds 3 maanden aangeboden door Hauzer & Partners;
  • De galerijflat heeft een woonoppervlakte van 135 m² en beschikt over 3 kamers, waarvan 2 slaapkamers;
  • De woning is gebouwd In 2010 en ligt in de buurt Centrum in Venray.

Beschrijving

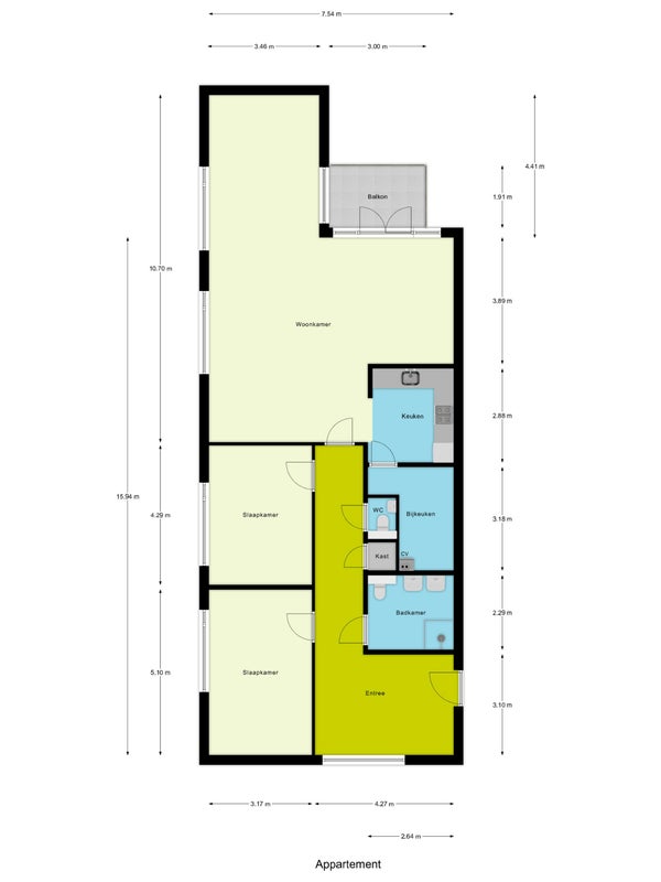
Dit mooie appartement, gelegen op de 4de verdieping van de Gouden Leeuwtoren in het hart van Venray, heeft een woonoppervlakte van 135 m² en een inhoud van 437 m³. Gebouwd in 2010, beschikt het over drie kamers en twee slaapkamers die veel daglicht bieden. De hal leidt naar een apart toilet, een moderne badkamer met inloopdouche, dubbele wastafel en toilet, en een open L-vormige keuken met luxe voorzieningen. De lichte woonkamer geeft toegang tot een balkon van circa 8 m² met uitzicht op het Gouden Leeuwplein. Het appartement heeft ook een eigen parkeerplaats en private berging in de afgesloten parkeergarage. Met energielabel A is het energiezuinig en biedt het veel wooncomfort. De servicekosten bedragen ongeveer € 250,- per maand.

Overdracht

Vraagprijs
€ 435.000 k.k.
Aangeboden sinds
07-11-2025
Status
Beschikbaar
Beschikbaar
Per direct

Oppervlakte en inhoud

Woonoppervlakte
135 m²

Bouw

Type woning
Appartement
Soort woning
Galerijflat
Soort bouw
Bestaande bouw
Bouwjaar
2010

Indeling

Aantal kamers
3
Aantal slaapkamers
2
Aantal badkamers
1

Buitenruimte

Dakterras
Niet aanwezig

Energie

Energielabel
A
Meld een probleem met deze woning