Contact met de makelaar

Deze woning is gevonden buiten ons eigen netwerk. Met de knop hieronder kom je direct bij de aanbieder terecht.

Nieuw

Gouden Leeuwplein

Bekijk kaart
5801 MN Venray (Centrum)
€ 435.000 k.k.
  • 137 m²
  • 3 kamers
  • 2010

Samenvatting

  • Deze woning wordt sinds 21 januari 2026 aangeboden door Hauzer & Partners;
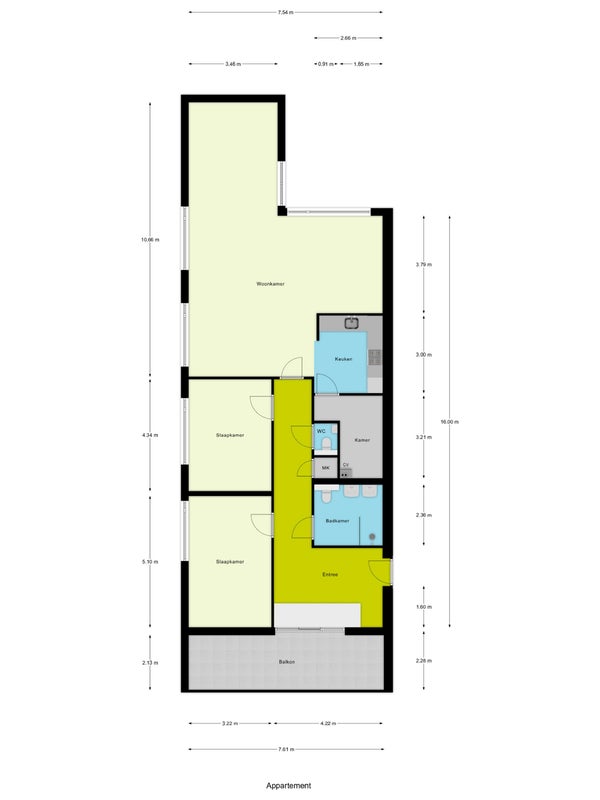
  • De galerijflat heeft een woonoppervlakte van 137 m² en beschikt over 3 kamers, waarvan 2 slaapkamers;
  • De woning is gebouwd In 2010 en ligt in de buurt Centrum in Venray.

Beschrijving

Welkom in het hart van Venray, waar dit appartement op de 2e verdieping van de Gouden Leeuwtoren u verwelkomt met een prachtig uitzicht over de stad. Met een woonoppervlakte van 137 m² biedt het appartement plaats aan drie kamers, inclusief twee slaapkamers. De moderne badkamer beschikt over een inloopdouche, dubbele wastafel en toilet. De open keuken, ontworpen in 2010, is praktisch en voorzien van luxe apparatuur.

Verder heeft het appartement een eigen parkeerplaats en een privéberging in de afgesloten parkeergarage, waar u altijd verzekerd bent van een plek. Geniet van het ruime balkon van circa 15 m² met uitzicht op het Gouden Leeuwplein. Met energielabel A en lage servicekosten is dit een comfortabele woonruimte in een centrale locatie.

Overdracht

Vraagprijs
€ 435.000 k.k.
Aangeboden sinds
21-01-2026
Status
Beschikbaar
Beschikbaar
Per direct

Oppervlakte en inhoud

Woonoppervlakte
137 m²

Bouw

Type woning
Appartement
Soort woning
Galerijflat
Soort bouw
Bestaande bouw
Bouwjaar
2010

Indeling

Aantal kamers
3
Aantal slaapkamers
2
Aantal badkamers
1

Buitenruimte

Dakterras
Niet aanwezig

Energie

Energielabel
A
Meld een probleem met deze woning