Contact met de makelaar

Deze woning is gevonden buiten ons eigen netwerk. Met de knop hieronder kom je direct bij de aanbieder terecht.

Chopinlaan

Bekijk kaart
2253 BZ Voorschoten (Adegeest)
€ 379.000 k.k.
  • 72 m²
  • 3 kamers
  • 1966

Samenvatting

  • Deze woning wordt sinds 3 maanden aangeboden door Kwadraat Makelaardij;
  • De galerijflat heeft een woonoppervlakte van 72 m² en beschikt over 3 kamers, waarvan 2 slaapkamers;
  • De woning is gebouwd In 1966 en ligt in de buurt Adegeest in Voorschoten.

Beschrijving

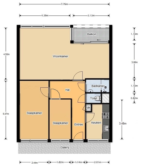
Te koop: prachtig instapklare 3-kamer hoekappartement met lift in Adegeest, Voorschoten. Bezichtigingen starten op 3 november 2025. Het appartement, gelegen op het zuidwesten, is onderdeel van een gewild complex en biedt een ruime woonkamer van circa 30m² met balkon en mooi uitzicht. De indeling omvat een foyer, moderne keuken, badkamer met inloopdouche, en twee slaapkamers. De woning is goed bereikbaar met een lift, heeft een energielabel E, en recent zijn er verbeteringen doorgevoerd in isolatie. Voorzieningen zoals sportfaciliteiten en winkels liggen dichtbij. De VVE-bijdrage bedraagt € 210,65 per maand. Vraagprijs € 379.000,- kosten koper.

Overdracht

Vraagprijs
€ 379.000 k.k.
Aangeboden sinds
17-10-2025
Status
Beschikbaar
Beschikbaar
In overleg

Oppervlakte en inhoud

Woonoppervlakte
72 m²

Bouw

Type woning
Appartement
Soort woning
Galerijflat
Soort bouw
Bestaande bouw
Bouwjaar
1966

Indeling

Aantal kamers
3
Aantal slaapkamers
2
Aantal badkamers
1

Buitenruimte

Dakterras
Niet aanwezig

Energie

Energielabel
E
Meld een probleem met deze woning