Contact met de makelaar

Deze woning is gevonden buiten ons eigen netwerk. Met de knop hieronder kom je direct bij de aanbieder terecht.

Nieuw

Charentestroom 11

Bekijk kaart
2721 AC Zoetermeer (Oosterheem-Noord-Oost)
€ 525.000 k.k.
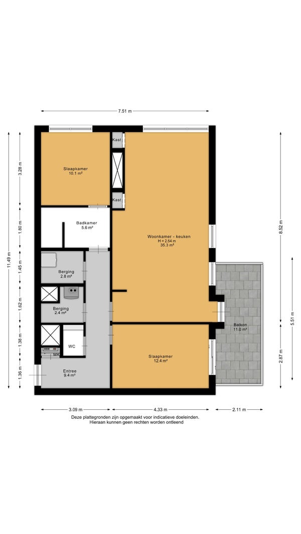
  • 84 m²
  • 3 kamers
  • 2024

Samenvatting

  • Deze woning wordt sinds 26 oktober 2025 aangeboden door Schieland Borsboom NVM Makelaars Zoetermeer;
  • De portiekflat heeft een woonoppervlakte van 84 m² en beschikt over 3 kamers, waarvan 2 slaapkamers;
  • De woning is gebouwd In 2024 en ligt in de buurt Oosterheem-Noord-Oost in Zoetermeer;
  • De woning beschikt onder andere over de volgende voorzieningen: Kabel TV, Lift, Mechanische ventilatie, Douche, Bergruimte, Toilet.

Beschrijving

Meer woninginformatie bekijken?

Log in of registreer gratis.

Overdracht

Vraagprijs
€ 525.000 k.k.
Aangeboden sinds
26-10-2025
Status
Beschikbaar
Beschikbaar
In overleg
Onderhoudsstaat
Zeer goed

Oppervlakte en inhoud

Woonoppervlakte
84 m²
Inhoud
272 m³

VvE informatie

Inschrijving KvK
Ja
Jaarlijkse vergadering
Ja
Periodieke bijdrage
Ja (€ 136 per maand)
Reservefonds aanwezig
Ja
Onderhoudsplan
Ja
Opstalverzekering
Ja

Bouw

Type woning
Appartement
Soort woning
Portiekflat, Appartement
Soort bouw
Bestaande bouw
Bouwjaar
2024
Ligging
  • In een woonwijk
  • Beschut gelegen
  • Vrij uitzicht

Indeling

Aantal kamers
3
Aantal slaapkamers
2
Aantal badkamers
1
Aantal woonlagen
1
Voorzieningen
  • Kabel TV
  • Lift
  • Mechanische ventilatie
  • Douche
  • Bergruimte
  • Toilet

Buitenruimte

Balkon
Aanwezig
Tuin
Niet aanwezig
Dakterras
Niet aanwezig

Energie

Isolatie
Vloerisolatie, Volledig geïsoleerd, HR glas, Dakisolatie, Driedubbele beglazing, Muurisolatie
Verwarming
Volledige vloerverwarming, Warmtepomp, Warmte terugwininstallatie
Energielabel
A+++

Bergruimte

Schuur/Berging
Aanwezig
Omschrijving
Box

Parkeergelegenheid

Aanwezig
Ja
Soort parkeergelegenheid
Openbaar

Garage

Aanwezig
Nee
Meld een probleem met deze woning
Contact met de makelaar Bel