Woning verhuren

Contact met de makelaar

Deze woning is gevonden buiten ons eigen netwerk. Met de knop hieronder kom je direct bij de aanbieder terecht.

Nieuw

Te huur: Huis Breitnerhof in Hoorn

Bekijk kaart
1628 XN (Kersenboogerd-Zuid - Buurt 33 06)
€ 1.650 per maand
  • 122 m²
  • 5 kamers
  • 2000

Exclusief voor jou

Deze woning is voor jou beschikbaar via je persoonlijke notificatie en verschijnt niet in de zoekresultaten.

Beschrijving

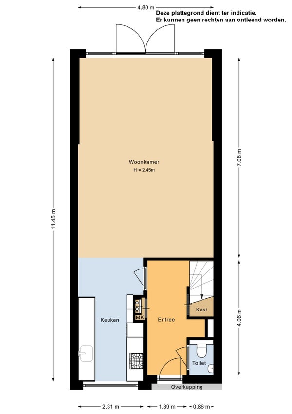
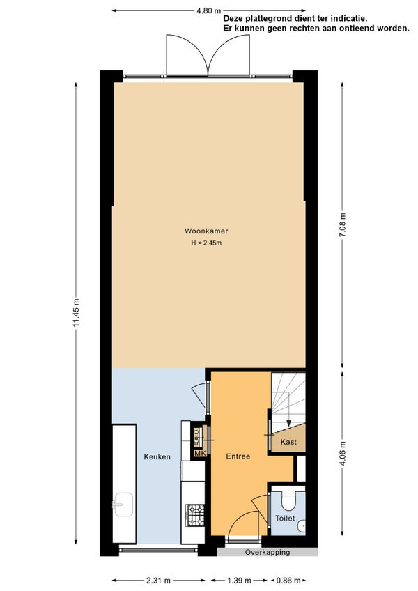
Te huur is een ruime tussenwoning in de gewilde wijk Kersenboogerd-Zuid in Hoorn. De woning bevindt zich dichtbij een supermarkt, speeltuinen, bushalte en basisscholen, en is op fietsafstand van de binnenstad met winkels en restaurants. De woning beschikt over drie ruime slaapkamers. De begane grond heeft een entrée met hal, toilet, trapkast en meterkast, en een ruime woonkamer met aanbouw en openslaande deuren naar de tuin. De keuken aan de voorzijde is voorzien van een gaskookplaat, afzuigkap, oven en vaatwasser. Op de eerste verdieping zijn de slaapkamers en een badkamer met ligbad, douche, wastafelmeubel en toilet. De tweede verdieping biedt een grote open ruimte met opstelling voor wasmachine en droger. De achtertuin ligt op het zuidoosten en heeft een stenen berging en parkeeropties. De woning is beschikbaar per 17 februari 2026 voor € 1.650,- per maand, exclusief gas, water en elektra.

Overdracht

Huurprijs
€ 1.650 per maand
Aangeboden sinds
04-12-2025
Status
Te huur
Beschikbaar
Per direct

Oppervlakte en inhoud

Woonoppervlakte
122 m²

Bouw

Type woning
Huis
Soort woning
Tussenwoning (rijtjeshuis), Eengezinswoning
Soort bouw
Bestaande bouw
Bouwjaar
2000

Indeling

Aantal kamers
5
Aantal slaapkamers
3
Aantal badkamers
1

Buitenruimte

Dakterras
Niet aanwezig

Energie

Energielabel
A

Huurvoorwaarden

Doelgroep
Werkende
Meld een probleem met deze woning