Woning verhuren

Contact met de makelaar

Deze woning is gevonden buiten ons eigen netwerk. Met de knop hieronder kom je direct bij de aanbieder terecht.

Te huur: Appartement Nieuwsteeg in Hoorn

Bekijk kaart
1621 EC (Binnenstad - Buurt 10 02)
€ 1.100 per maand
  • 90 m²
  • 3 kamers
  • Gestoffeerd

Beschrijving

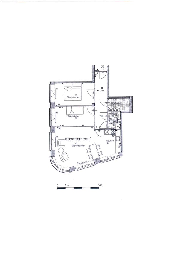
In het hart van Hoorn aan de Nieuwsteeg 55B zijn negen luxe appartementen gevestigd in een karakteristiek pand tegenover de Hema. Dit stijlvolle monument is volledig gerenoveerd en biedt moderne woningen op de eerste, tweede en derde verdieping met een eigen toegang. Op de tweede verdieping is een 3-kamer appartement beschikbaar met uitzicht op de Nieuwsteeg en de Gouw. Het appartement van 90 m² beschikt over een moderne keuken met inbouwapparatuur, een luxe badkamer in zwart/witte kleuren, laminaatvloeren en voorzien van gordijnen en vitrages. Huurprijs bedraagt € 1.100,- per maand, met servicekosten van € 85,- en voorschot water van € 20,-. Beschikbaar vanaf 1 januari 2026 met een inkomenseis van € 48.500,-. Geen woningdelers of huisdieren toegestaan.

Overdracht

Huurprijs
€ 1.100 per maand
Aangeboden sinds
18-11-2025
Status
Te huur
Beschikbaar
Per 01-01-2026
Interieur
Gestoffeerd

Oppervlakte en inhoud

Woonoppervlakte
90 m²

Bouw

Type woning
Appartement
Soort woning
Galerijflat
Soort bouw
Bestaande bouw

Indeling

Aantal kamers
3
Aantal badkamers
1

Buitenruimte

Dakterras
Niet aanwezig

Huurvoorwaarden

Doelgroep
Werkende
Meld een probleem met deze woning