Woning verhuren

Contact met de makelaar

Deze woning is gevonden buiten ons eigen netwerk. Met de knop hieronder kom je direct bij de aanbieder terecht.

Te huur: Huis Torenstraat in Soest

Bekijk kaart
3764 CM (Soest Midden)
€ 2.750 per maand
  • 136 m²
  • 4 kamers
  • 1915

Exclusief voor jou

Deze woning is voor jou beschikbaar via je persoonlijke notificatie en verschijnt niet in de zoekresultaten.

Beschrijving

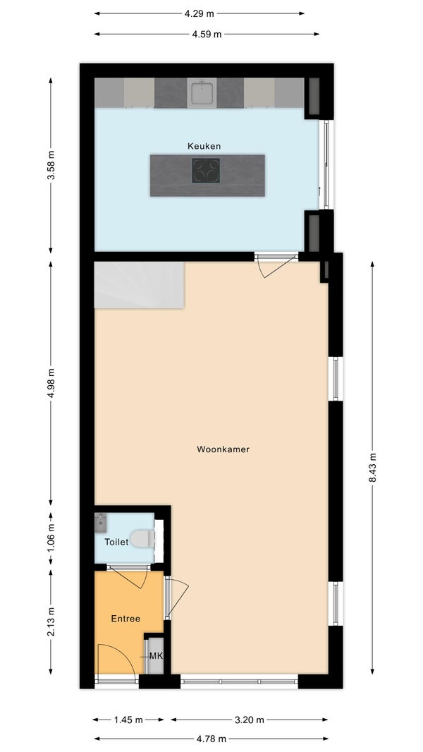
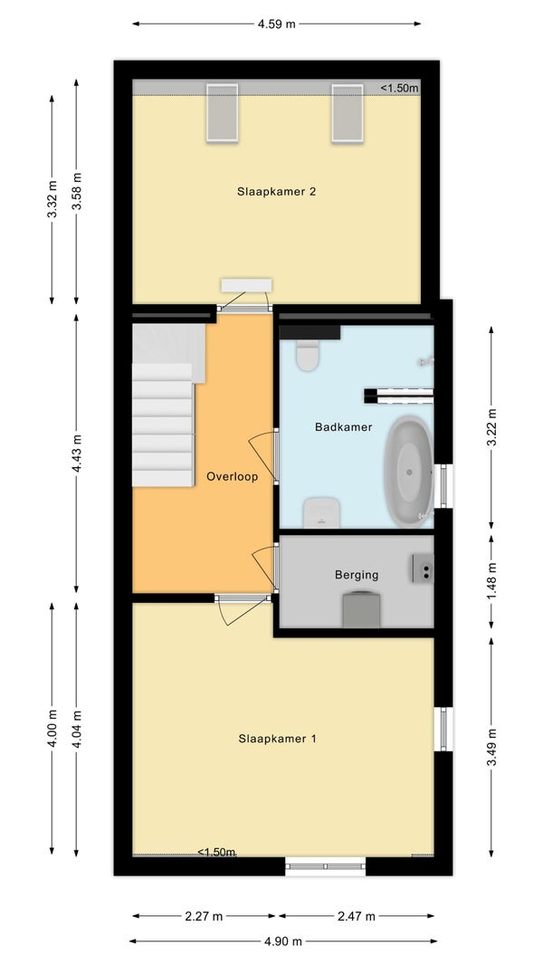
Deze volledig gemoderniseerde twee-onder-een-kapwoning aan de Torenstraat in Soest, biedt energielabel A+++, vloerverwarming op alle verdiepingen en zonnepanelen. De begane grond heeft een entree met hal en modern toilet, en een ruime woonkamer met grote ramen en een pvc-vloer in visgraatmotief. De open keuken is uitgerust met een kookeiland, inductiekookplaat, combi-oven, koel/vriescombinatie, Quooker en veel opbergruimte. Op de eerste verdieping zijn drie slaapkamers en een luxe badkamer met ligbad en inloopdouche. De tweede verdieping beschikt over een open ruimte geschikt voor diverse doeleinden. De onderhoudsarme tuin heeft een stenen berging. De woning is centraal gelegen nabij winkels en openbaar vervoer.

Overdracht

Huurprijs
€ 2.750 per maand
Aangeboden sinds
18-11-2025
Status
Te huur
Beschikbaar
Per direct

Oppervlakte en inhoud

Woonoppervlakte
136 m²

Bouw

Type woning
Huis
Soort woning
Tussenwoning (rijtjeshuis), Eengezinswoning
Soort bouw
Bestaande bouw
Bouwjaar
1915

Indeling

Aantal kamers
4
Aantal slaapkamers
3
Aantal badkamers
1

Buitenruimte

Dakterras
Niet aanwezig

Energie

Energielabel
A+++

Huurvoorwaarden

Doelgroep
Werkende
Meld een probleem met deze woning