Woning verhuren

Contact met de makelaar

Deze woning is gevonden buiten ons eigen netwerk. Met de knop hieronder kom je direct bij de aanbieder terecht.

Nieuw

Te huur: Huis Torenstraat in Soest

Bekijk kaart
3764 CM (Soest Midden)
€ 3.000 per maand
  • 123 m²
  • 4 kamers
  • 1938

Exclusief voor jou

Deze woning is voor jou beschikbaar via je persoonlijke notificatie en verschijnt niet in de zoekresultaten.

Beschrijving

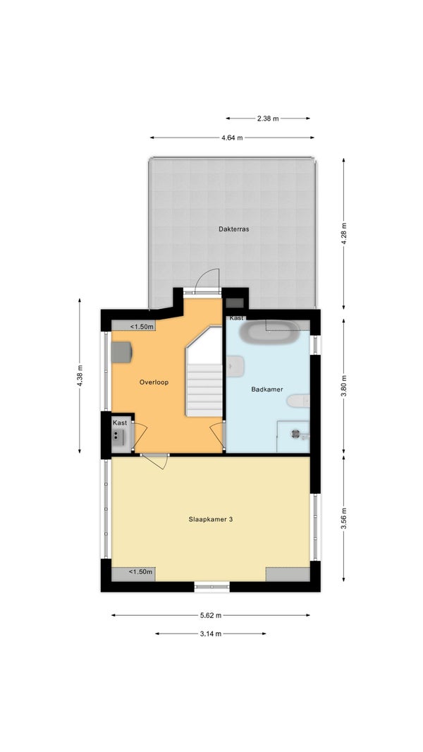
Deze vrijstaande woning aan de Torenstraat 18 in Soest heeft een A++ energielabel en is voorzien van moderne afwerkingen. Met drie slaapkamers en een luxe badkamer waarin een vrijstaand ligbad en inloopdouche zijn verwerkt, biedt deze woning veel comfort. De ruime woonkamer met erker zorgt voor veel lichtinval en sluit aan op een moderne open keuken met inbouwapparatuur. Op de eerste verdieping is er toegang tot een royaal dakterras, dat ideaal is voor ontspanning. De woning beschikt ook over een kelder voor extra opslag en een separate berging in de tuin. Met zonnepanelen en een warmtepomp is deze woning toekomstbestendig, en de aanwezige camera- en deursystemen verhogen de veiligheid.

Overdracht

Huurprijs
€ 3.000 per maand
Aangeboden sinds
04-12-2025
Status
Te huur
Beschikbaar
Per direct

Oppervlakte en inhoud

Woonoppervlakte
123 m²

Bouw

Type woning
Huis
Soort woning
Tussenwoning (rijtjeshuis), Eengezinswoning
Soort bouw
Bestaande bouw
Bouwjaar
1938

Indeling

Aantal kamers
4
Aantal slaapkamers
3
Aantal badkamers
1

Buitenruimte

Dakterras
Niet aanwezig

Energie

Energielabel
A++

Huurvoorwaarden

Doelgroep
Werkende
Meld een probleem met deze woning