Woning verhuren

Contact met de aanbieder

Deze woning is gevonden buiten ons eigen netwerk. Via de knop hieronder ga je direct naar de website van de aanbieder.

Te huur: Huis Bermuda in Zaandam

Bekijk kaart
1505 XA (Bomenbuurt Oost)
€ 2.299 per maand
  • 75 m²
  • 4 kamers
  • 2006

Beschrijving

TE HUUR- karakteristieke en ruime woning gelegen in Zaandam.

Ligging:
Op zoek naar een ruime hoekwoning met alle voorzieningen in de buurt? Deze woning in Zaandam Zuid is perfect voor jou! geschikt voor delers en gezinnen, met energielabel B, 2 slaapkamers en een zonnig dakterras, heeft deze woning alles wat je nodig hebt. Gunstig gelegen in Zaandam Zuid, winkels en openbaar vervoer zijn slechts op korte afstand. Bovendien biedt de centrale ligging snel toegang tot belangrijke snelwegen.

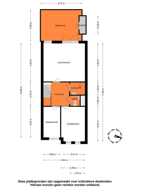
Indeling:

Begane Grond:
Betreed de woning via een ruime hal met meterkast, trap naar de bovenverdieping, inpandige berging en toegang tot de keuken-eetkamer. De keuken-eetkamer is een heerlijke plek om met het gezin samen te komen. De hoekkeuken is uitgerust met diverse inbouwapparatuur. Naast de keuken bevindt zich de inpandige berging met de centrale verwarming en aansluitingen voor de wasmachine.

Bovenverdieping:
De overloop leidt naar twee slaapkamers, de badkamerfaciliteiten en de lichte woonkamer. De woonkamer kan eenvoudig worden ingericht en biedt voldoende ruimte voor een gezellige zithoek, een speelhoek voor kinderen of zelfs een thuiskantoor. Op aangename dagen open je de openslaande deuren naar het aangrenzende dakterras. Het dakterras is een heerlijke plek om te ontspannen, met ruimte voor een comfortabele loungeset en een eettafel voor gezellige maaltijden met familie en vrienden. Bovendien is er een praktische opbergruimte op het dakterras. De bovenverdieping herbergt ook twee comfortabele slaapkamers. Deze goed bemeten kamers zijn aangenaam verlicht dankzij de grote ramen. De goed onderhouden badkamer is voorzien van een wastafel, handdoekradiator en een praktische douchecorner. Het aparte toilet met fontein zorgt voor extra comfort en privacy.

Connectiviteit:
Locatie:
Kun je in Amsterdam niet DE woning vinden met ruimte, een goed energielabel en goed ingedeelde ruimtes? Kom dan eens kijken in Zaandam Zuid. Deze buurt ligt het dichtst bij Amsterdam - slechts 10 minuten met de auto naar Sloterdijk!

Bijzonderheden:

Centrale ligging
Dichtbijgelegen voorzieningen
De woning heeft een definitief energielabel B, geldig tot 25-04-2033.

Huurprijs: €2.350,- per maand.

Overdracht

Huurprijs
€ 2.299 per maand
Prijs per m²
€ 31
Aangeboden sinds
03-02-2026
Status
Te huur
Beschikbaar
In overleg
Onderhoudsstaat
Goed

Oppervlakte en inhoud

Woonoppervlakte
75 m²
Inhoud
253 m³

Bouw

Type woning
Huis
Soort woning
Eindwoning, Eengezinswoning
Soort bouw
Bestaande bouw
Bouwjaar
2006

Indeling

Aantal kamers
4
Aantal slaapkamers
2
Aantal woonlagen
2

Buitenruimte

Balkon
Niet aanwezig
Tuin
Aanwezig
Tuinbeschrijving
zonneterras
Achterom
Niet aanwezig
Dakterras
Niet aanwezig

Energie

Energielabel
B

Parkeergelegenheid

Aanwezig
Ja
Soort parkeergelegenheid
Openbaar

Garage

Aanwezig
Nee
Meld een probleem met deze woning