Contact met de makelaar

Deze woning is gevonden buiten ons eigen netwerk. Met de knop hieronder kom je direct bij de aanbieder terecht.

Verkocht onder voorbehoud

Cornelis Pronklaan 72

Bekijk kaart
1816 NR Alkmaar (De Hoef III en IV)
€ 325.000 k.k.
  • 73 m²
  • 4 kamers
  • 1967

Samenvatting

  • Deze woning wordt sinds 6 weken aangeboden door Boss Makelaardij;
  • De tussenwoning heeft een woonoppervlakte van 73 m² en beschikt over 4 kamers, waarvan 3 slaapkamers;
  • De woning is gebouwd In 1967 en ligt in de buurt De Hoef III en IV in Alkmaar.

Beschrijving

Charmante Tussenwoning met Ruime Tuinen in Rustige Woonwijk

In de rustige en groene woonwijk ‘Hoefplan’ ligt deze knusse tussenwoning met 3 slaapkamers, welke uitermate geschikt is voor diegene die op zoek is naar een woning met veel potentie en mogelijkheden. De woning heeft een ruime voor- en achtertuin en biedt de ideale basis om naar eigen wens te moderniseren of uit te breiden. Dankzij de ligging nabij het gezellige winkelcentrum De Hoef en de ringweg van Alkmaar is de woning zeer goed bereikbaar en biedt het tegelijkertijd rust en privacy. Ook zijn scholen en winkels op korte afstand gelegen, wat het dagelijkse leven extra comfortabel maakt.

Kortom, dit is een woning die volop mogelijkheden biedt. Of u nu de woning wilt uitbreiden, moderniseren of gewoon wilt genieten van de ruimte en rust, deze woning heeft het allemaal. Kom snel kijken en ontdek wat deze woning voor u kan beteken

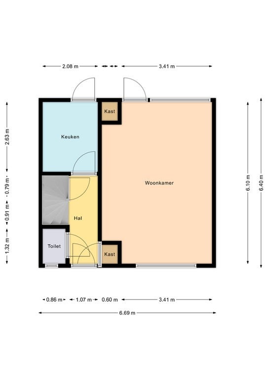
De lichte doorzonwoonkamer op de begane grond is een fijne ruimte die u op verschillende manieren kunt indelen, afhankelijk van uw persoonlijke voorkeur. Of u nu kiest voor een tuingerichte of straatgerichte indeling, het is een ruimte die veel daglicht binnenlaat en een fijne sfeer biedt. De keuken, die eenvoudig is ingericht, biedt voldoende ruimte om naar eigen wens te verfrissen.

De eerste verdieping is voorzien van drie slaapkamers. De badkamer is eenvoudig, maar praktisch, met een douche en wastafel.

Op de tweede verdieping bevindt zich een vliering, een ideale bergruimte die u kunt gebruiken voor opslag. Daarnaast biedt de vliering uitstekende mogelijkheden voor een dakopbouw of dakkapel, waarmee u de woning kunt uitbreiden en meer ruimte kunt creëren.

De achtertuin is 10 meter diep en ligt op het noordwesten, wat zorgt voor veel privacy en ruimte voor verschillende doeleinden. De tuin biedt bovendien de mogelijkheid om de woning uit te bouwen, waarbij u nog steeds voldoende tuinruimte achter de woning behoudt. Achterin de tuin vindt u een flinke stenen berging, Deze is ideaal voor het opbergen van tuinaccessoires of fietsen. De tuin is achterom bereikbaar via de gezamelijke steeg.

Overdracht

Vraagprijs
€ 325.000 k.k.
Aangeboden sinds
16-12-2025
Status
Verkocht onder voorbehoud
Beschikbaar
In overleg
Onderhoudsstaat
Goed

Oppervlakte en inhoud

Woonoppervlakte
73 m²
Perceeloppervlakte
140 m²
Inhoud
240 m³

Bouw

Type woning
Huis
Soort woning
Tussenwoning (rijtjeshuis), Eengezinswoning
Soort bouw
Bestaande bouw
Bouwjaar
1967
Ligging
  • In een woonwijk
  • Nabij het openbaar vervoer
  • Nabij een school
  • Nabij een winkelcentrum

Indeling

Aantal kamers
4
Aantal slaapkamers
3
Aantal badkamers
1
Aantal woonlagen
2
Voorzieningen
  • Kabel TV
  • Toilet

Buitenruimte

Balkon
Niet aanwezig
Tuin
Aanwezig (61 m², gelegen op het noordwesten)
Tuinbeschrijving
achtertuin
Achterom
Aanwezig
Dakterras
Niet aanwezig

Energie

Isolatie
Dubbele beglazing, Vloerisolatie
Verwarming
CV-ketel
Warm water
CV-ketel
Energielabel
D

Bergruimte

Schuur/Berging
Aanwezig

Parkeergelegenheid

Aanwezig
Ja
Soort parkeergelegenheid
Openbaar
Meld een probleem met deze woning