Contact met de makelaar

Deze woning is gevonden buiten ons eigen netwerk. Met de knop hieronder kom je direct bij de aanbieder terecht.

Nieuw

Lamoraalstraat 4

Bekijk kaart
1815 DN Alkmaar (Nassaukwartier en Hout)
€ 850.000 k.k.
  • 141 m²
  • 5 kamers
  • 1920

Samenvatting

  • Deze woning wordt sinds 29 januari 2026 aangeboden door Stefan de Vries Makelaar;
  • De tussenwoning heeft een woonoppervlakte van 141 m² en beschikt over 5 kamers, waarvan 4 slaapkamers;
  • De woning is gebouwd In 1920 en ligt in de buurt Nassaukwartier en Hout in Alkmaar.

Beschrijving

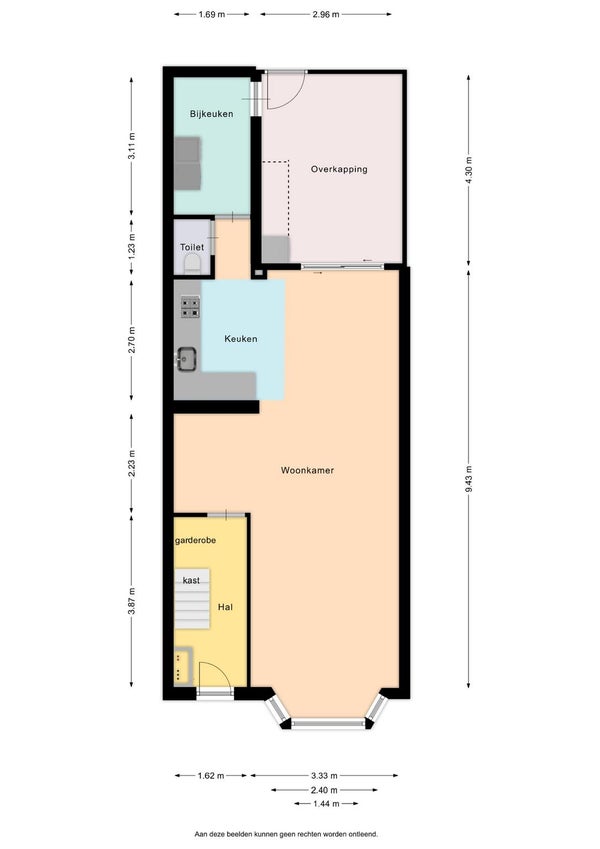
Dit karakteristieke jaren '20 herenhuis, gelegen in het geliefde Nassaukwartier van Alkmaar, biedt luxe en authenticiteit. Met een woonoppervlakte van 141 m² en 4 slaapkamers, beschikt het over een ruime stadstuin van 49 m². De charmante gevel en bijzondere details geven de woning een statige uitstraling. De sfeervolle woonkamer van ongeveer 44 m² is stijlvol afgewerkt en heeft een moderne houthaard. De open keuken is van alle gemakken voorzien en biedt toegang tot de tuin. Op de eerste verdieping zijn twee slaapkamers, waaronder de royale hoofdslaapkamer met en-suite badkamer. De tweede verdieping herbergt nog eens twee slaapkamers. De onderhoudsvriendelijke tuin met overkapping is perfect voor buitenactiviteiten. Daarnaast is er recente isolatie en een energielabel C. Een ideale woning voor gezinnen.

Overdracht

Vraagprijs
€ 850.000 k.k.
Aangeboden sinds
29-01-2026
Status
Beschikbaar
Beschikbaar
Per direct

Oppervlakte en inhoud

Woonoppervlakte
141 m²
Perceeloppervlakte
122 m²

Bouw

Type woning
Huis
Soort woning
Tussenwoning (rijtjeshuis), Eengezinswoning
Soort bouw
Bestaande bouw
Bouwjaar
1920

Indeling

Aantal kamers
5
Aantal slaapkamers
4
Aantal badkamers
1

Buitenruimte

Dakterras
Niet aanwezig

Energie

Energielabel
C
Meld een probleem met deze woning