Contact met de makelaar

Deze woning is gevonden buiten ons eigen netwerk. Met de knop hieronder kom je direct bij de aanbieder terecht.

Nieuw

Okapistraat 8

Bekijk kaart
1338 JV Almere (Faunabuurt Zuidoost)
€ 450.000 k.k.
  • 141 m²
  • 5 kamers
  • 1994

Samenvatting

  • Deze woning wordt sinds 13 februari 2026 aangeboden door Semeijn Makelaardij B.V.;
  • De tussenwoning heeft een woonoppervlakte van 141 m² en beschikt over 5 kamers, waarvan 3 slaapkamers;
  • De woning is gebouwd In 1994 en ligt in de buurt Faunabuurt Zuidoost in Almere.

Beschrijving

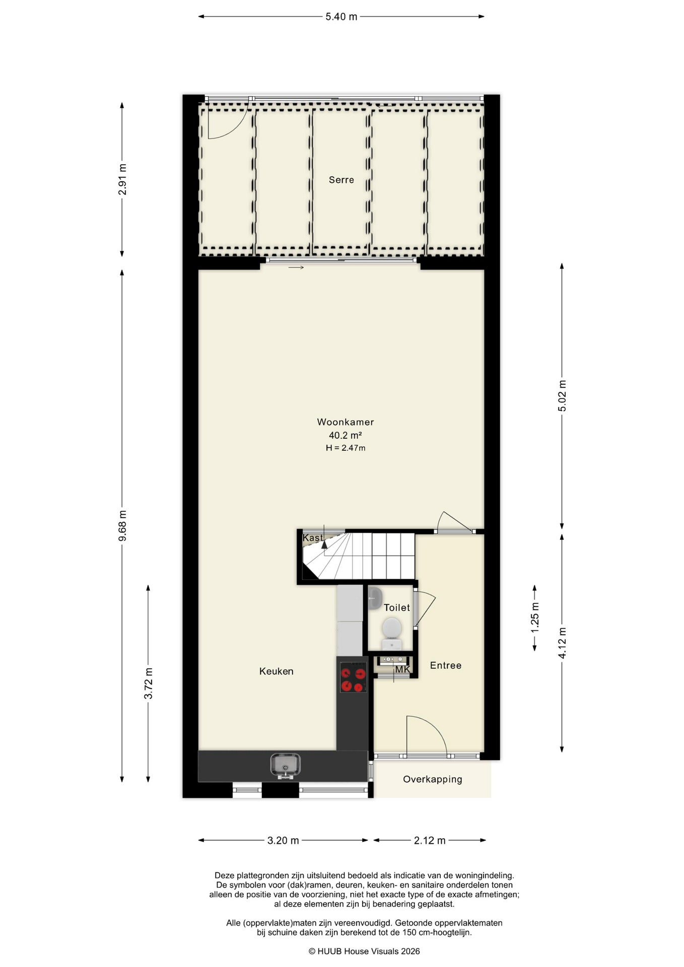
Deze ruime en lichte eengezinswoning met serre heeft een moderne keuken vernieuwd in 2022 en biedt verrassend veel leefruimte. Gelegen in de kindvriendelijke Faunabuurt in Almere, in een rustige straat met voldoende parkeergelegenheid, vormt dit huis een fijne woonomgeving met alle voorzieningen binnen handbereik. De begane grond biedt een entreehal, toilet en een woonkamer van circa 40 m² met uitzicht op de tuin. De aan de voorzijde gesitueerde keuken is voorzien van inbouwapparatuur en biedt praktische werk- en kastruimte. Op de eerste verdieping bevinden zich drie slaapkamers en een badkamer met douche en toilet. De zolder is bereikbaar via een vaste trap en biedt een royale open ruimte. De achtertuin is onderhoudsvriendelijk met een vrijstaande berging.

Overdracht

Vraagprijs
€ 450.000 k.k.
Prijs per m²
€ 3.191
Aangeboden sinds
13-02-2026
Status
Beschikbaar
Beschikbaar
Per direct

Oppervlakte en inhoud

Woonoppervlakte
141 m²
Perceeloppervlakte
138 m²

Bouw

Type woning
Huis
Soort woning
Tussenwoning (rijtjeshuis), Eengezinswoning
Soort bouw
Bestaande bouw
Bouwjaar
1994

Indeling

Aantal kamers
5
Aantal slaapkamers
3
Aantal badkamers
1

Buitenruimte

Dakterras
Niet aanwezig

Energie

Energielabel
A
Meld een probleem met deze woning