Contact met de aanbieder

Deze woning is gevonden buiten ons eigen netwerk. Via de knop hieronder ga je direct naar de website van de aanbieder.

Aletta Jacobsstraat 67

Bekijk kaart
1349 HB Almere (Oosterwold Noord)
€ 450.000 k.k.
  • 57 m²
  • 3 kamers
  • 2026

Samenvatting

  • Deze woning wordt sinds 3 weken aangeboden door Semeijn Makelaardij B.V.;
  • De tussenwoning heeft een woonoppervlakte van 57 m² en beschikt over 3 kamers, waarvan 1 slaapkamer;
  • De woning is gebouwd In 2026 en ligt in de buurt Oosterwold Noord in Almere.

Beschrijving

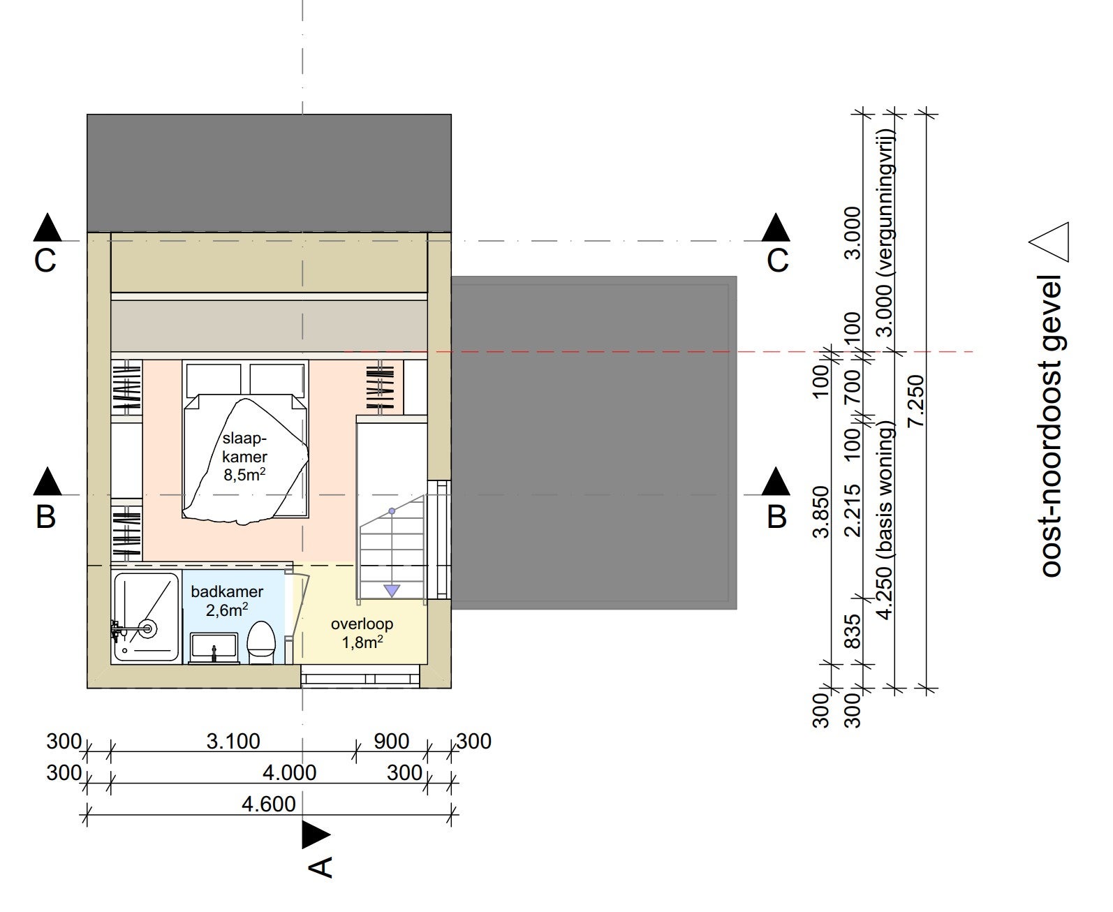
Compact wonen in stijl – deze duurzame nieuwbouwwoning in Almere Oosterwold biedt zo'n 57 m² woonoppervlak over twee verdiepingen. De woning is volledig gasloos en gebouwd met een energiezuinige houtskeletbouwconstructie. De begane grond beschikt over een open leefruimte, waar een lichte zithoek en een eetkeuken zijn geïntegreerd, evenals een aparte studiehoek en een berging. Op de verdieping ligt een slaapkamer, een badkamer en een overloop met aansluitingen voor de wasmachine. Met aandacht voor lichtinval en ruimte voelt de woning bijzonder ruimtelijk aan. Dit alles is gelegen aan de Aletta Jacobsstraat, in een groene omgeving dicht bij scholen, winkels en recreatie, op een perceel van ongeveer 215 m².

Overdracht

Vraagprijs
€ 450.000 k.k.
Prijs per m²
€ 7.895
Aangeboden sinds
27-01-2026
Status
Beschikbaar
Beschikbaar
Per direct

Oppervlakte en inhoud

Woonoppervlakte
57 m²
Perceeloppervlakte
215 m²

Bouw

Type woning
Huis
Soort woning
Tussenwoning (rijtjeshuis), Eengezinswoning
Soort bouw
Bestaande bouw
Bouwjaar
2026

Indeling

Aantal kamers
3
Aantal slaapkamers
1
Aantal badkamers
1

Buitenruimte

Dakterras
Niet aanwezig

Energie

Energielabel
A+++
Meld een probleem met deze woning