Niet beschikbaar

De woning die je wilt bekijken is niet langer beschikbaar. Je bekijkt nu het woningaanbod in dezelfde stad.

Contact met de makelaar

Deze woning is gevonden buiten ons eigen netwerk. Met de knop hieronder kom je direct bij de aanbieder terecht.

Utrechtseweg 337

Bekijk kaart
3818 EL Amersfoort (Vlasakkers)
€ 1.899.500 k.k.
  • 172 m²
  • 6 kamers
  • 1937

Samenvatting

  • Deze woning wordt sinds 6 weken aangeboden door Mijn Huis Verkoop Ik Zelf;
  • De vrijstaande woning heeft een woonoppervlakte van 172 m² en beschikt over 6 kamers;
  • De woning is gebouwd In 1937 en ligt in de buurt Vlasakkers in Amersfoort.

Beschrijving

Dennenheuvel – Een tijdloze villa op de top van de Amersfoortse Berg

Welkom bij Dennenheuvel, een prachtige villa die al sinds 1937 zijn unieke karakter uitstraalt. Onder architectuur gebouwd, staat deze vrijstaande woning fier op het hoogste punt van de Utrechtse Heuvelrug. Hier woont u letterlijk boven alles uit, met een adembenemend uitzicht over de omgeving en de omliggende natuur. Dennenheuvel is niet zomaar een huis; het is een plek waar historie, stijl en rust samenkomen.

De villa is uniek geplaatst op een royaal perceel van bijna 5.000 m². Met een eigen bos pad! De tuin omringt de woning volledig en biedt een gevoel van vrijheid en privacy dat zelden voorkomt. De ligging aan de Vlasakkers – nu een uitgestrekt natuurgebied en voorheen een militair oefenterrein – maakt dit een paradijs voor natuurliefhebbers. Wandelroutes strekken zich uit van Amersfoort tot Soesterberg, waardoor u in een paar stappen kunt ontsnappen aan de drukte van het dagelijks leven en kunt genieten van de rustgevende natuur.

Binnen in Dennenheuvel ervaart u de charme van vervlogen tijden. Veel van de originele details zijn behouden, waardoor het huis een authentieke sfeer uit de jaren ’30 ademt. , De woning op een nieuwe eigenaar die de villa in ere kan herstellen. Schilderwerk en houtwerk, zoals dakgoten en betimmering, vragen om aandacht, terwijl de kozijnen nog in goede staat verkeren. Deze villa biedt dus de perfecte mix van karakter en mogelijkheden om een persoonlijke stempel te drukken.

De buurt rondom Dennenheuvel biedt alles wat u zich maar kunt wensen: de rustige allure van de Utrechtse Heuvelrug, een natuurlijke omgeving voor sport, wandelen en ontspanning, en toch de nabijheid van het bruisende centrum van Amersfoort. Hier woont u in alle rust, maar met alle voorzieningen binnen handbereik.

Hoogtepunten

  • Vrijstaande villa uit 1937 onder architectuur gebouwd
  • Gelegen op het hoogste punt van de Utrechtse Heuvelrug / Amersfoortse Berg
  • Perceel van bijna 5.000 m², volledig omgeven door natuur
  • Uitzicht over de Vlasakkers, een groot wandel- en natuurgebied
  • Grotendeels originele staat.
  • Authentieke details behouden, karaktervolle woning met mogelijkheden
  • Nabijheid van Amersfoort met rust, ruimte en natuur binnen handbereik

Dennenheuvel is een woning die u echt moet beleven om de unieke sfeer en het bijzondere uitzicht te ervaren. Wilt u de charme van deze villa zelf ontdekken en zien wat deze bijzondere plek te bieden heeft? Plan een bezichtiging en laat u betoveren door Dennenheuvel.

Bijzonderheden
Gezien het bouwjaar en het feit dat verkoper de woning niet zelf heeft bewoond, zullen in de koopovereenkomst een ouderdomsclausule, asbestclausule en niet-bewonersclausule worden opgenomen.

Gevonden op ******

Overdracht

Vraagprijs
€ 1.899.500 k.k.
Aangeboden sinds
19-12-2025
Status
Beschikbaar
Beschikbaar
In overleg

Oppervlakte en inhoud

Woonoppervlakte
172 m²
Perceeloppervlakte
4.730 m²
Inhoud
689 m³

Bouw

Type woning
Huis
Soort woning
Vrijstaande woning, Villa
Soort bouw
Bestaande bouw
Bouwjaar
1937

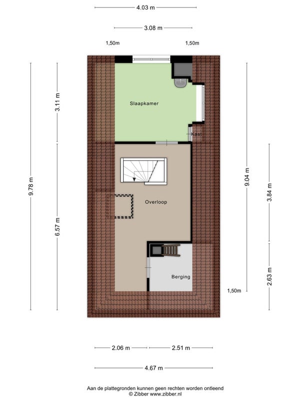
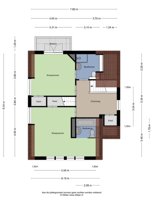
Indeling

Aantal kamers
6

Buitenruimte

Tuin
Aanwezig
Dakterras
Niet aanwezig

Energie

Energielabel
F

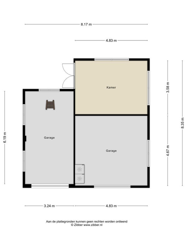
Garage

Aanwezig
Nee
Meld een probleem met deze woning