Contact met de makelaar

Deze woning is gevonden buiten ons eigen netwerk. Met de knop hieronder kom je direct bij de aanbieder terecht.

Nieuw

Kruiskamp 122

Bekijk kaart
3814 PE Amersfoort (Kruiskamp-Noord)
€ 460.000 k.k.
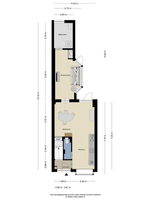
  • 81 m²
  • 6 kamers
  • 1926

Samenvatting

  • Deze woning wordt sinds 24 oktober 2025 aangeboden door Negenplus Makelaars;
  • De tussenwoning heeft een woonoppervlakte van 81 m² en beschikt over 6 kamers, waarvan 3 slaapkamers;
  • De woning is gebouwd In 1926 en ligt in de buurt Kruiskamp-Noord in Amersfoort;
  • De woning beschikt onder andere over de volgende voorzieningen: Bad, Glasvezelaansluiting, Mechanische ventilatie, Douche, Dakraam, Toilet, Wasruimte.

Beschrijving

Meer woninginformatie bekijken?

Log in of registreer gratis.

Overdracht

Vraagprijs
€ 460.000 k.k.
Aangeboden sinds
24-10-2025
Status
Beschikbaar
Beschikbaar
In overleg
Onderhoudsstaat
Goed

Oppervlakte en inhoud

Woonoppervlakte
81 m²
Perceeloppervlakte
125 m²
Inhoud
324 m³

Bouw

Type woning
Huis
Soort woning
Tussenwoning (rijtjeshuis), Eengezinswoning
Soort bouw
Bestaande bouw
Bouwjaar
1926
Ligging
  • Aan een rustige weg
  • In een woonwijk

Indeling

Aantal kamers
6
Aantal slaapkamers
3
Aantal badkamers
1
Aantal woonlagen
3
Voorzieningen
  • Bad
  • Glasvezelaansluiting
  • Mechanische ventilatie
  • Douche
  • Dakraam
  • Toilet
  • Wasruimte

Buitenruimte

Balkon
Niet aanwezig
Tuin
Aanwezig (32 m², gelegen op het noordoosten)
Tuinbeschrijving
achtertuin, voortuin
Dakterras
Niet aanwezig

Energie

Isolatie
Dubbele beglazing, Vloerisolatie, HR glas, Dakisolatie, Muurisolatie
Verwarming
CV-ketel
Warm water
CV-ketel
Cv-ketel
Nefit (Gas, uit 2019, Eigendom)
Energielabel
C

Bergruimte

Schuur/Berging
Aanwezig
Omschrijving
Vrijstaand steen

Parkeergelegenheid

Aanwezig
Ja
Soort parkeergelegenheid
Vergunning

Garage

Aanwezig
Nee
Meld een probleem met deze woning
Contact met de makelaar Bel