Contact met de makelaar

Deze woning is gevonden buiten ons eigen netwerk. Met de knop hieronder kom je direct bij de aanbieder terecht.

Nieuw

Panfluitstraat 19

Bekijk kaart
3822 CX Amersfoort (Muziekbuurt-Noord)
€ 625.000 k.k.
  • 155 m²
  • 5 kamers
  • 1992

Samenvatting

  • Deze woning wordt sinds 4 oktober 2025 aangeboden door Negenplus Makelaars;
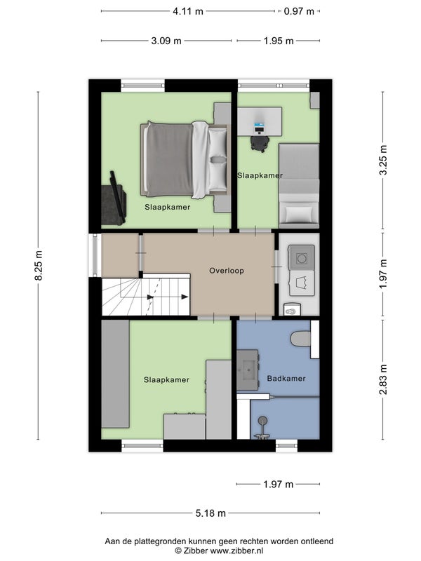
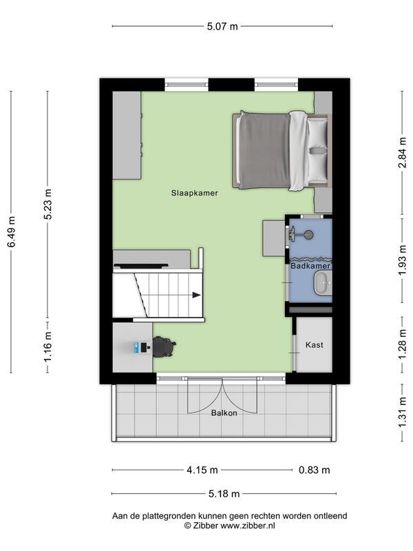
  • De geschakelde woning heeft een woonoppervlakte van 155 m² en beschikt over 5 kamers, waarvan 4 slaapkamers;
  • De woning is gebouwd In 1992 en ligt in de buurt Muziekbuurt-Noord in Amersfoort;
  • De woning beschikt onder andere over de volgende voorzieningen: Kabel TV, Glasvezelaansluiting, Mechanische ventilatie, Douche, Dakraam, Toilet, Wasruimte.

Beschrijving

Overdracht

Vraagprijs
€ 625.000 k.k.
Aangeboden sinds
04-10-2025
Status
Beschikbaar
Beschikbaar
In overleg
Onderhoudsstaat
Goed

Oppervlakte en inhoud

Woonoppervlakte
155 m²
Perceeloppervlakte
157 m²
Inhoud
548 m³

Bouw

Type woning
Huis
Soort woning
Geschakelde woning, Eengezinswoning
Soort bouw
Bestaande bouw
Bouwjaar
1992
Ligging
  • Aan een rustige weg
  • In een woonwijk

Indeling

Aantal kamers
5
Aantal slaapkamers
4
Aantal badkamers
2
Aantal woonlagen
3
Voorzieningen
  • Kabel TV
  • Glasvezelaansluiting
  • Mechanische ventilatie
  • Douche
  • Dakraam
  • Toilet
  • Wasruimte

Buitenruimte

Balkon
Aanwezig
Tuin
Aanwezig (50 m², gelegen op het oosten)
Tuinbeschrijving
achtertuin, voortuin
Dakterras
Niet aanwezig

Energie

Isolatie
Dubbele beglazing, Vloerisolatie, Dakisolatie, Muurisolatie
Verwarming
CV-ketel
Warm water
CV-ketel
Cv-ketel
Nefit (Gas, uit 2020, Eigendom)
Energielabel
B

Bergruimte

Schuur/Berging
Aanwezig
Omschrijving
Aangebouwd steen

Parkeergelegenheid

Aanwezig
Ja
Soort parkeergelegenheid
Openbaar

Garage

Aanwezig
Nee
Meld een probleem met deze woning
Contact met de makelaar Bel