Contact met de makelaar

Deze woning is gevonden buiten ons eigen netwerk. Met de knop hieronder kom je direct bij de aanbieder terecht.

Nieuw

Overtoom 220 H

Bekijk kaart
1054 HZ Amsterdam (Helmersbuurt)
Prijs op aanvraag
  • 267 m²
  • 10 kamers
  • 1890

Samenvatting

  • Deze woning wordt sinds 13 februari 2026 aangeboden door Vastgoed Veiling;
  • De tussenwoning heeft een woonoppervlakte van 267 m² en beschikt over 10 kamers, waarvan 3 slaapkamers;
  • De woning is gebouwd In 1890 en ligt in de buurt Helmersbuurt in Amsterdam.

Beschrijving

Gelegen aan de Overtoom 220 H, 1054 HZ Amsterdam wordt dit herenhuis aangeboden middels een online veiling.
Online executieveiling welke zal plaatsvinden via de website van Vastgoed Veiling. Omdat het een executieveiling betreft is er geen vraagprijs bekend.

Bezichtigingen:
Let op! Het is mogelijk om dit object te bezichtigen op 6 maart 2026 tussen 10:30 en 11:45 uur. Vooraf aanmelden bij Vastgoed Veiling is verplicht en legitimatie is vereist voorafgaand aan de bezichtiging.

Omschrijving registergoed:
Het betreft het woonhuis met ondergrond, plaatselijk bekend Overtoom 220 H, 220-1, 220-2 en 220-3 te Amsterdam (1054 HZ), kadastraal bekend gemeente Amsterdam, sectie Q, nummer 2179, groot één are en veertig centiare (140 m²). Er zijn aantekeningen bij het Kadaster inzake publiekrechtelijke beperkingen en een besluit op grond van de Wet geluidhinder. Het registergoed is in gebruik bij de debiteur(en) en mogelijk verhuurd en/of in gebruik gegeven aan derden. De verkoper staat niet in voor de bevoegdheid tot ontruiming; eventuele ontruiming is voor rekening en risico van de koper.

Vermoedelijke omschrijving:
Herenhuis uit 1890, gelegen aan de Overtoom in Amsterdam, met een totale woonoppervlakte van circa 267 m² (BVO ca. 309 m²), verdeeld over meerdere zelfstandige woonlagen en een souterrain. Het perceel bedraagt 140 m² en beschikt over een achtertuin van circa 45 m². Gelegen op eigen grond.

Het pand heeft een kadastrale aanduiding met vier huisnummers (220, 220-1, 220-2 en 220-3). De eerste, tweede en derde verdieping zijn ingericht als zelfstandige appartementen. Het souterrain en de bel-etage (220) behoren bij elkaar. De vierde verdieping betreft een bergingszolder van circa 57 m² BVO.

Indeling
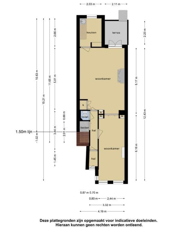
Bel-etage en souterrain (220)
Begane grond met entree, hal, toilet, twee woonkamers en keuken aan de achterzijde met toegang tot het terras en de achtertuin. Interne trap naar het souterrain met twee kamers en een badkamer aan de achterzijde. Totale woonoppervlakte van deze woonlaag bedraagt ca. 100 m².

Eerste verdieping (220-1)
Woonkamer aan de voorzijde, slaapkamer, separate keuken aan de achterzijde en badkamer via de hal bereikbaar.

Tweede verdieping (220-2)
Woonkamer, slaapkamer, keuken en badkamer. Indeling wijkt licht af van de eerste verdieping.

Derde verdieping (220-3)
Woonkamer, slaapkamer, keuken en badkamer. Vergelijkbare indeling als de tweede verdieping.

Vierde verdieping
Bergingszolder, momenteel in gebruik als opslagruimte.
Bouwjaar: 1890

Vergunning:
Voor het registergoed is bij besluit van 5 augustus 2025 (kenmerk Z2025-013466, DSO-nummer ******) door het college van burgemeester en wethouders van Amsterdam een omgevingsvergunning verleend voor het verdiepen en uitbouwen van het souterrain, het realiseren van een dakterras en het uitbreiden van balkons aan de achterzijde.

Aan deze vergunning zijn diverse voorschriften en voorwaarden verbonden. De vergunningstukken zijn voor zover beschikbaar ter inzage via ******.

De uitvoering van de vergunde werkzaamheden, alsmede het voldoen aan de daaraan verbonden voorwaarden, voorschriften, meld- en informatieplichten en eventuele overige publiekrechtelijke verplichtingen, komt volledig voor rekening en risico van koper. Verkoper verstrekt ter zake geen garanties.

Onderhands bod
Het is mogelijk om tot en met 10 maart 2026 een onderhandse bieding uit te brengen bij notariskantoor RoX Legal B.V.

Over de veiling
Soort: Executieveiling
Biedmethode: Opbod en afslag
Datum: 25 maart 2026 vanaf 11:30 uur
Organisator: ******
Inzetpremie: Ten laste verkoper
Toewijzing: Recht van gunning
Belasting: Overdrachtsbelasting
Openbare verkoop ex. art. 3:268 BW juncto 3:254 BW

Voor aanvullende informatie kunt u terecht op ****** of neemt u contact op met:
Vastgoed Veiling
Tel: +31 ******

RoX Legal B.V.
Dhr. Rogier van Heeswijk / mw. Demi Hansum
Coolsingel 104, 3011 AG Rotterdam
Tel. +31 (0)10 / ******

Garanties
Verkoper geeft geen enkele garantie en aanvaardt geen enkele aansprakelijkheid omtrent datgene dat hij terzake het registergoed meedeelt, dan wel heeft meegedeeld of waarvan mededeling achterwege blijft. De koper aanvaardt het registergoed in alle opzichten op basis van het “as is, where is” principe, waaronder onder meer bedoeld de bouwkundige, juridische, milieukundige, technische en feitelijke toestand waarin het registergoed zich bevindt.

Overdracht

Vraagprijs
Prijs op aanvraag
Aangeboden sinds
13-02-2026
Status
Beschikbaar
Beschikbaar
In overleg
Onderhoudsstaat
Redelijk

Oppervlakte en inhoud

Woonoppervlakte
267 m²
Perceeloppervlakte
140 m²
Inhoud
900 m³

Bouw

Type woning
Huis
Soort woning
Tussenwoning (rijtjeshuis), Herenhuis
Soort bouw
Bestaande bouw
Bouwjaar
1890
Ligging
In het centrum

Indeling

Aantal kamers
10
Aantal slaapkamers
3
Aantal badkamers
4
Aantal woonlagen
6
Voorzieningen
  • Bergruimte
  • Toilet

Buitenruimte

Balkon
Niet aanwezig
Dakterras
Niet aanwezig

Energie

Energielabel
E
Meld een probleem met deze woning