Contact met de makelaar

Deze woning is gevonden buiten ons eigen netwerk. Met de knop hieronder kom je direct bij de aanbieder terecht.

Nieuw

Stade de Colombes 68

Bekijk kaart
1098 VV Amsterdam (Middenmeer)
€ 1.100.000 k.k.
  • 159 m²
  • 6 kamers
  • 2000

Samenvatting

  • Deze woning wordt sinds 23 oktober 2025 aangeboden door 't Huys Makelaardij;
  • De tussenwoning heeft een woonoppervlakte van 159 m² en beschikt over 6 kamers, waarvan 6 slaapkamers;
  • De woning is gebouwd In 2000 en ligt in de buurt Middenmeer in Amsterdam;
  • De woning beschikt onder andere over de volgende voorzieningen: Bad, Mechanische ventilatie, Douche, Bergruimte, Toilet, Wasruimte.

Beschrijving

Meer woninginformatie bekijken?

Log in of registreer gratis.

Overdracht

Vraagprijs
€ 1.100.000 k.k.
Aangeboden sinds
23-10-2025
Status
Beschikbaar
Beschikbaar
In overleg
Onderhoudsstaat
Goed

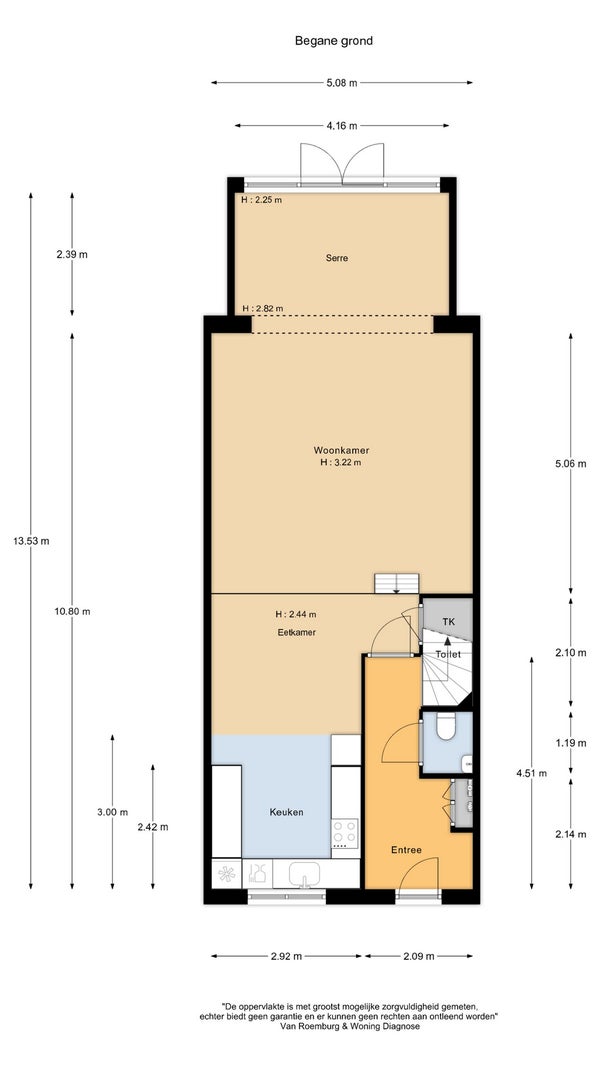
Oppervlakte en inhoud

Woonoppervlakte
159 m²
Perceeloppervlakte
156 m²
Inhoud
558 m³

Bouw

Type woning
Huis
Soort woning
Tussenwoning (rijtjeshuis), Eengezinswoning
Soort bouw
Bestaande bouw
Bouwjaar
2000
Ligging
  • Aan een rustige weg
  • Aan het water
  • In een woonwijk

Indeling

Aantal kamers
6
Aantal slaapkamers
6
Aantal badkamers
1
Aantal woonlagen
3
Voorzieningen
  • Bad
  • Mechanische ventilatie
  • Douche
  • Bergruimte
  • Toilet
  • Wasruimte

Buitenruimte

Balkon
Niet aanwezig
Tuin
Aanwezig (45 m², gelegen op het zuidwesten)
Tuinbeschrijving
achtertuin
Dakterras
Niet aanwezig

Energie

Isolatie
Dubbele beglazing, Vloerisolatie, Dakisolatie, Muurisolatie
Verwarming
Stadsverwarming
Energielabel
A+

Bergruimte

Schuur/Berging
Aanwezig
Omschrijving
Aangebouwd steen

Parkeergelegenheid

Aanwezig
Ja
Soort parkeergelegenheid
Op eigen terrein

Garage

Aanwezig
Ja
Omschrijving
Parkeerplaats
Meld een probleem met deze woning
Contact met de makelaar Bel