Contact met de makelaar

Deze woning is gevonden buiten ons eigen netwerk. Met de knop hieronder kom je direct bij de aanbieder terecht.

Nieuw

Nederhoven 34

Bekijk kaart
1083 AN Amsterdam (Buitenveldert-Oost)
€ 1.250.000 k.k.
  • 166 m²
  • 6 kamers
  • 1961

Samenvatting

  • Deze woning wordt sinds 20 januari 2026 aangeboden door VHM Makelaars Amsterdam;
  • De hoekwoning heeft een woonoppervlakte van 166 m² en beschikt over 6 kamers, waarvan 4 slaapkamers;
  • De woning is gebouwd In 1961 en ligt in de buurt Buitenveldert-Oost in Amsterdam;
  • De woning beschikt onder andere over de volgende voorzieningen: Bad, Kabel TV, Mechanische ventilatie, Douche, Schuifdeuren, Toilet.

Beschrijving

Royale hoekwoning van meer dan 166m2 woonoppervlak, verdeeld over drie woonlagen op ruim perceel van maar liefst 270m2 met zonnige tuin op het gunstige zuidwesten. Deze woning is voorzien van 4 ruime slaapkamers, twee badkamers en de voor-, zij- en achtertuin zijn totaal meer dan 172 m2.

INDELING

Begane grond
De ruime voortuin leidt naar de entree, waar zich een garderobe en separaat toilet bevinden. Van daaruit betreedt u de lichte woonkamer met vissengraat vloer en luxe open keuken, voorzien van inbouwapparatuur. Aangrenzend vindt u een grote serre met aansluitingen voor wasmachine, droger en CV-installatie. Vanuit de serre heeft u toegang tot een ruime berging en via de grote schuifdeuren bereikt u de zonnige achtertuin.

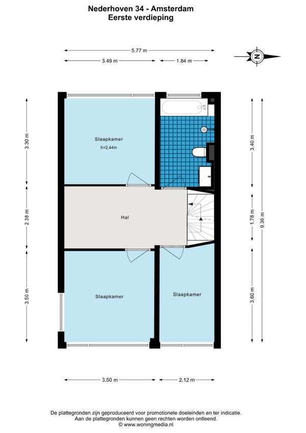
Eerste verdieping
De eerste verdieping beschikt over drie slaapkamers, die bereikbaar zijn via een ruime hal. Aan de voorzijde bevinden zich twee slaapkamers, aan de achterzijde de derde slaapkamer, evenals een luxe badkamer met een aparte inloopdouche, ligbad, modern wastafelmeubel en een toilet.

Tweede verdieping
De tweede verdieping bestaat geheel uit de master bedroom, via de slaapkamer is er toegang tot de tweede badkamer met inloopdouche, wastafel en toilet. Aan de achterzijde heeft u via openslaande deuren toegang tot een royaal balkon over de gehele breedte van de woning, welke is gelegen op het zuidwesten. De woning is tevens uitgerust met zonnepanelen (totaal 12 panelen).

LIGGING EN BEREIKBAARHEID
De woning ligt in de gewilde wijk Amsterdam Buitenveldert. Deze wijk is ruim opgezet, kindvriendelijk en vooral voorzien van veel groen, brede wegen voor voetgangers, fietsers en automobilisten. In de directe nabijheid zijn veel voorzieningen waaronder het geliefde winkelcentrum Groot Gelderlandplein en diverse buurtwinkelcentra, sportfaciliteiten, recreatiemogelijkheden in o.a. het Amstelpark en Het Amsterdamse Bos maar ook scholen (van basisschool tot Universiteit). Ook verschillende internationale scholen als The British School, AICS en Amity International School zijn in de nabijheid. De Zuidas is zo’n 7 minuten lopen. Amsterdam centrum is goed bereikbaar met het openbaar vervoer, tram of bus naar station Rai/ station Zuid-WTC en Amstelstation. Met de auto bent u in korte tijd op de ringweg A-10 richting Utrecht of Den Haag. Er is voldoende parkeergelegenheid rondom de woning (betaald of middels vergunning).

EIGENDOM VAN DE GROND
De woning is gelegen op erfpachtgrond. Volgens Algemene Bepalingen voor eeuwigdurende erfpacht 2016. Het huidige tijdvak is loopt tot en met 15 oktober 2035 en heeft een vast jaarlijkse canon van € 564,50. De canon is voor de periode hierna onder de gunstige condities vastgezet en bedraagt voor dit jaar € 2.974,80 (jaarlijks geïndexeerd).

Bijzonderheden:

  • Woonoppervlak 166m2 (NEN 2590 ingemeten)
  • Perceeloppervlakte 270m2
  • Gelegen in een rustige, kindvriendelijke buurt
  • Energielabel C
  • Ruime tuin gelegen op het zonnige zuidwesten.
  • Voorzien van 4 ruime slaapkamers
  • Uitgerust met 2 badkamers
  • Voorzien van 12 zonnepanelen
  • Oplevering in overleg

ENGLISH VERSION

Spacious Corner House of over 166m² Living Space, Spread Over Three Floors on a Generous Plot of 270m² with a Sunny Southwest-Facing Garden. This property features 4 large bedrooms, two bathrooms, and the combined front, side, and rear gardens total more than 172m².

LAYOUT

Ground Floor
The spacious front garden leads to the entrance, where a cloakroom and separate toilet are located. From here, you enter the bright living room with herringbone flooring and a luxury open kitchen equipped with built-in appliances. Adjacent to the kitchen is a large conservatory with connections for a washing machine, dryer, and central heating system. The conservatory leads to a spacious storage area, and through the large sliding doors, you access the sunny rear garden.

First Floor
The first floor features three bedrooms, which are accessible via a spacious hallway. Two bedrooms are located at the front of the house, while the third bedroom is at the back, along with a luxurious bathroom featuring a separate walk-in shower, bathtub, modern vanity unit, and a toilet.

Second Floor
The second floor consists entirely of the master bedroom, with access to the second bathroom featuring a walk-in shower, washbasin, and toilet. At the rear, you have access to a spacious balcony that spans the entire width of the house, facing southwest. The house is also equipped with solar panels (a total of 12 panels).

LOCATION AND ACCESSIBILITY
The property is located in the sought-after neighborhood of Amsterdam Buitenveldert. This area is spacious, child-friendly, and abundant with greenery, with wide roads for pedestrians, cyclists, and motorists. Nearby are many amenities, including the popular shopping center Groot Gelderlandplein and various local shopping centers, sports facilities, recreational options such as Amstelpark and the Amsterdamse Bos, as well as schools (from primary school to university). Several international schools, including The British School, AICS, and Amity International School, are also nearby. The Zuidas is just a 7-minute walk away. The city center of Amsterdam is easily accessible by public transport, tram, or bus to stations Rai, Zuid-WTC, and Amstelstation. By car, you can quickly reach the A-10 ring road towards Utrecht or The Hague. There is ample parking around the property (paid or by permit).

LAND OWNERSHIP
The house is located on leasehold land under the General Provisions for Perpetual Leasehold 2016. The current lease period runs until October 15, 2035, with a fixed annual rent of €564.50. After this period, the rent will be set under favorable conditions, with the current annual amount being €2,974.80 (indexed annually).

Additional Features:

  • Living space: 166m² (measured according to NEN 2590 standards)
  • Plot size: 270m²
  • Located in a quiet, child-friendly neighborhood
  • Energy label C
  • Spacious garden facing the sunny southwest
  • Equipped with 4 large bedrooms
  • Includes 2 bathrooms
  • Equipped with 12 solar panels
  • Delivery in consultation

Overdracht

Vraagprijs
€ 1.250.000 k.k.
Aangeboden sinds
20-01-2026
Status
Beschikbaar
Beschikbaar
In overleg
Onderhoudsstaat
Goed

Oppervlakte en inhoud

Woonoppervlakte
166 m²
Perceeloppervlakte
269 m²
Inhoud
556 m³

Bouw

Type woning
Huis
Soort woning
Hoekwoning, Eengezinswoning
Soort bouw
Bestaande bouw
Bouwjaar
1961
Ligging
  • Aan een rustige weg
  • In een woonwijk

Indeling

Aantal kamers
6
Aantal slaapkamers
4
Aantal badkamers
2
Aantal woonlagen
3
Voorzieningen
  • Bad
  • Kabel TV
  • Mechanische ventilatie
  • Douche
  • Schuifdeuren
  • Toilet

Buitenruimte

Balkon
Niet aanwezig
Tuin
Aanwezig (63 m², gelegen op het zuidwesten)
Tuinbeschrijving
achtertuin, voortuin, zijtuin, zonneterras
Achterom
Aanwezig
Dakterras
Niet aanwezig

Energie

Isolatie
Dubbele beglazing, HR glas, Dakisolatie
Verwarming
CV-ketel
Warm water
CV-ketel
Cv-ketel
Nefit (Gas, uit 2010, Eigendom)
Energielabel
C

Parkeergelegenheid

Aanwezig
Ja
Soort parkeergelegenheid
Openbaar

Garage

Aanwezig
Nee
Meld een probleem met deze woning