Contact met de makelaar

Deze woning is gevonden buiten ons eigen netwerk. Met de knop hieronder kom je direct bij de aanbieder terecht.

Meander

Bekijk kaart
1619 XP Andijk (Andijk Zuid)
€ 335.000 k.k.
  • 109 m²
  • 5 kamers
  • 1981

Samenvatting

  • Deze woning wordt sinds 19 januari 2026 aangeboden door KUIN MAKELAARDIJ, actief en gedreven;
  • De tussenwoning heeft een woonoppervlakte van 109 m² en beschikt over 5 kamers, waarvan 4 slaapkamers;
  • De woning is gebouwd In 1981 en ligt in de buurt Andijk Zuid in Andijk.

Beschrijving

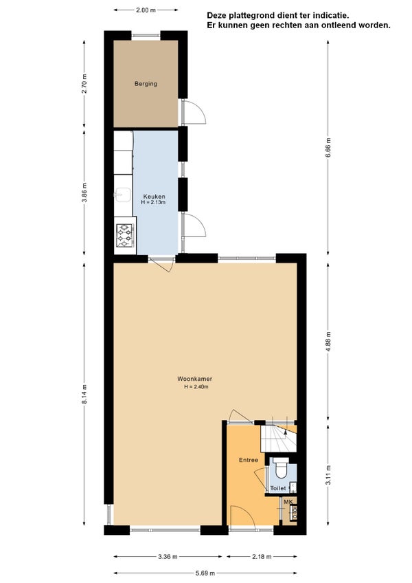
Ben je op zoek naar een instapklare tussenwoning? Deze verzorgde woning met berging ligt in een rustige, kindvriendelijke wijk, dicht bij winkels, scholen en het IJsselmeer. Bij binnenkomst word je begroet door een sfeervolle woonkamer met een visgraat PVC-vloer en stijlvolle glazendeuren. De onderhoudsvriendelijke voor- en achtertuin heeft een veranda en is bereikbaar via een achterom. Op de begane grond vind je een hal, toiletruimte en een gezellige zithoek die uitnodigt tot samenzijn. De keuken, met diverse inbouwapparatuur, biedt toegang tot de achtertuin. De eerste verdieping heeft drie slaapkamers en een badkamer met ligbad en douche. De tweede verdieping herbergt een ruime vierde slaapkamer met een dakkapel. Kortom, een comfortabele en goed onderhouden woning met een moderne uitstraling.

Overdracht

Vraagprijs
€ 335.000 k.k.
Aangeboden sinds
19-01-2026
Status
Beschikbaar
Beschikbaar
Per direct

Oppervlakte en inhoud

Woonoppervlakte
109 m²
Perceeloppervlakte
147 m²

Bouw

Type woning
Huis
Soort woning
Tussenwoning (rijtjeshuis), Eengezinswoning
Soort bouw
Bestaande bouw
Bouwjaar
1981

Indeling

Aantal kamers
5
Aantal slaapkamers
4
Aantal badkamers
1

Buitenruimte

Dakterras
Niet aanwezig

Energie

Energielabel
B
Meld een probleem met deze woning