- 145 m²
- 4 kamers
- 1983
Samenvatting
- Deze woning wordt sinds 22 januari 2026 aangeboden door KUIN MAKELAARDIJ, actief en gedreven;
- De tussenwoning heeft een woonoppervlakte van 145 m² en beschikt over 4 kamers, waarvan 3 slaapkamers;
- De woning is gebouwd In 1983 en ligt in de buurt Andijk Midden in Andijk.
Beschrijving
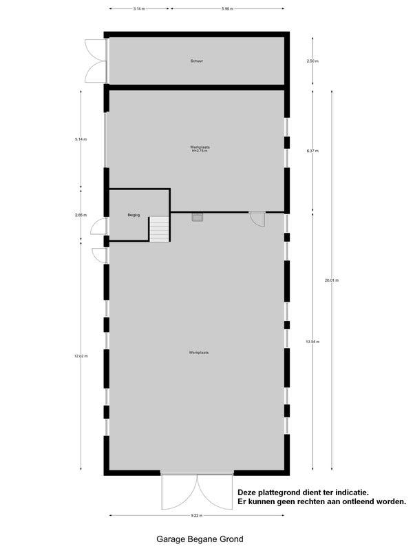
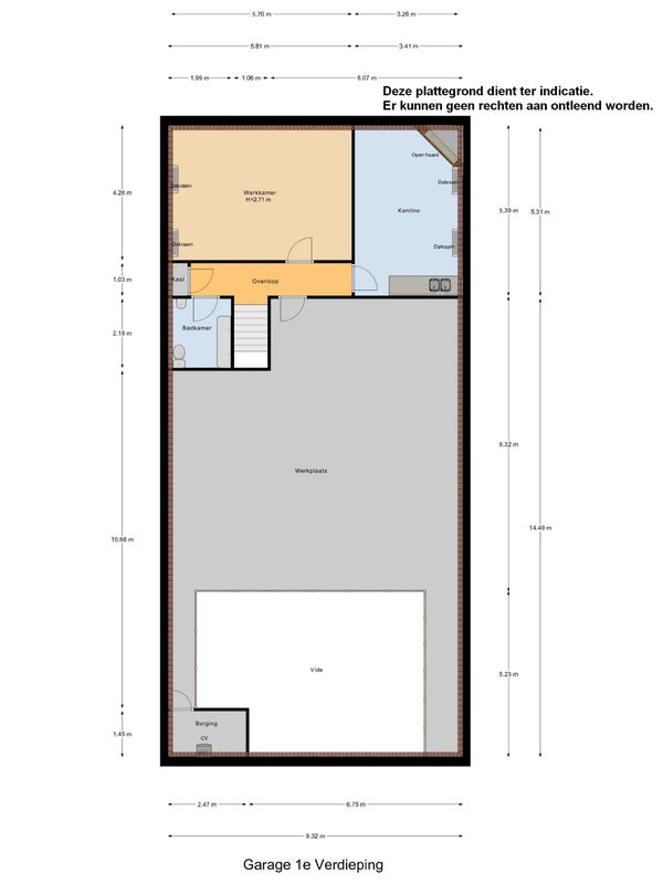
Op een prachtige locatie aan het water ligt deze veelzijdige woning met een groot perceel van ca. 1775 m2. Hier geniet je van rust, privacy en uitzicht over het omliggende landschap. De royale tuin biedt veel mogelijkheden en vormt een verlengstuk van de woning. De woning heeft een warme hal, ensuite deuren die leiden naar een lichte woonkamer met balkenplafond en openslaande deuren naar het terras. De praktische keuken heeft zicht op het water. De eerste verdieping heeft een ruime overloop, een ouderslaapkamer met balkon, twee slaapkamers en een complete badkamer. De opvallende werkplaats met hoge plafonds en veel daglicht is perfect voor diverse bedrijvigheden en biedt comfort voor langdurig gebruik. Dit is een unieke kans voor wie ruimte en vrijheid zoekt.
Overdracht
- Vraagprijs
- € 775.000 k.k.
- Aangeboden sinds
- 22-01-2026
- Status
- Beschikbaar
- Beschikbaar
- Per direct
Oppervlakte en inhoud
- Woonoppervlakte
- 145 m²
- Perceeloppervlakte
- 1.775 m²
Bouw
- Type woning
- Huis
- Soort woning
- Tussenwoning (rijtjeshuis), Eengezinswoning
- Soort bouw
- Bestaande bouw
- Bouwjaar
- 1983
Indeling
- Aantal kamers
- 4
- Aantal slaapkamers
- 3
- Aantal badkamers
- 1
Buitenruimte
- Dakterras
- Niet aanwezig
Energie
- Energielabel
- C