Contact met de makelaar

Deze woning is gevonden buiten ons eigen netwerk. Met de knop hieronder kom je direct bij de aanbieder terecht.

Nieuw

Socratesstraat 56

Bekijk kaart
7323 PG Apeldoorn (Sprenkelaar)
€ 400.000 k.k.
  • 159 m²
  • 7 kamers
  • 1970

Samenvatting

  • Deze woning wordt sinds 16 februari 2026 aangeboden door SAMEN met de makelaar;
  • De tussenwoning heeft een woonoppervlakte van 159 m² en beschikt over 7 kamers, waarvan 6 slaapkamers;
  • De woning is gebouwd In 1970 en ligt in de buurt Sprenkelaar in Apeldoorn.

Beschrijving

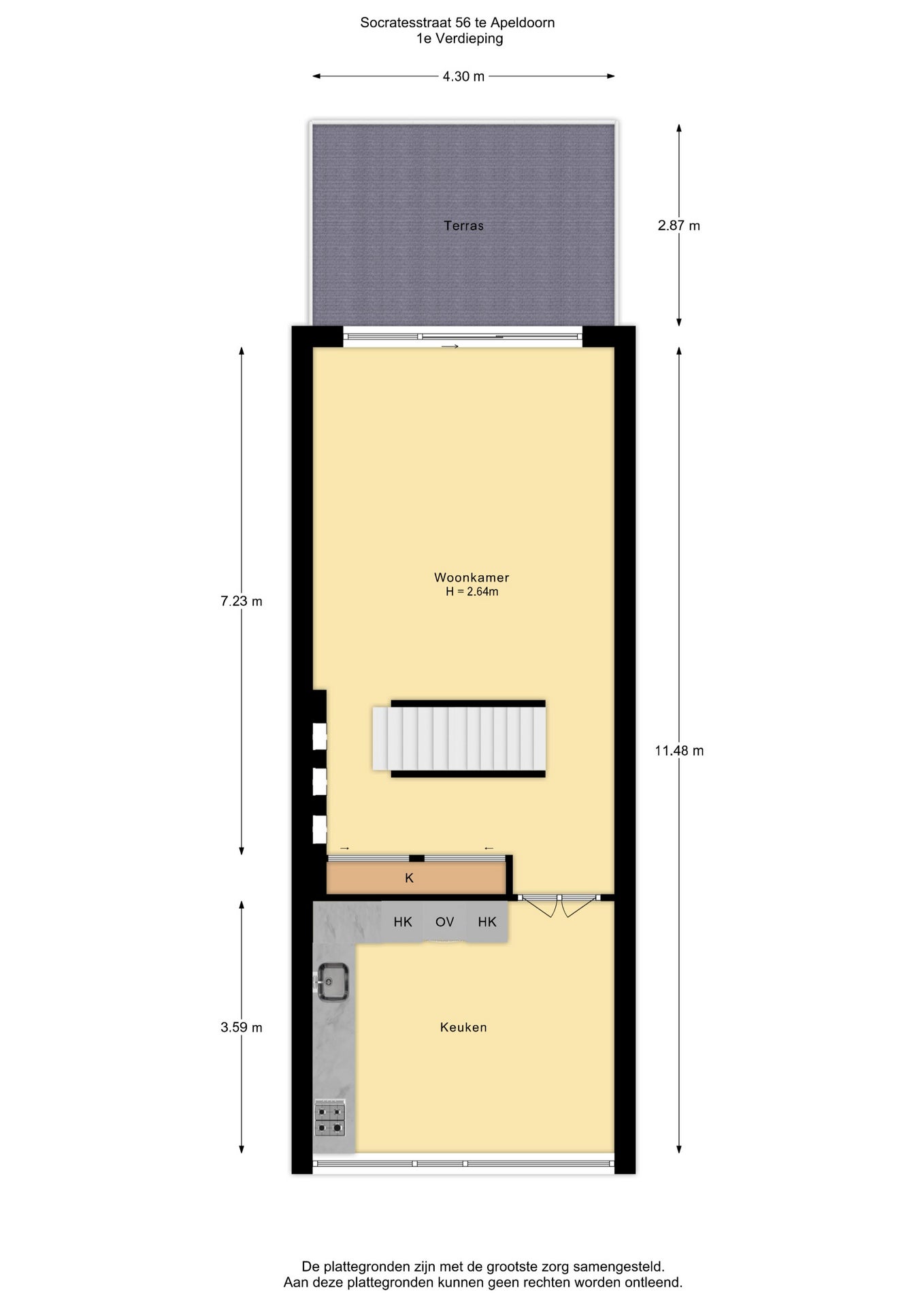
Deze uitstekend onderhouden tussenwoning met inpandige garage is gelegen in een rustig en groen hofje. De woning biedt met zijn extra dakopbouw verrassend veel ruimte en flexibele indelingsmogelijkheden. Op de begane grond vindt u een hal met toegang tot een royale tuingerichte slaapkamer en de inpandige garage. De eerste verdieping heeft een lichte woonkamer en een ruime woonkeuken. Op de tweede verdieping bevinden zich drie slaapkamers en een luxe badkamer. De derde verdieping heeft nog eens twee slaapkamers en een tweede badkamer. Met in totaal zes slaapkamers en twee badkamers biedt het huis volop leefruimte. De tuin ligt op het zuiden, perfect voor zonliefhebbers. De locatie is kindvriendelijk en dichtbij scholen, winkels en het NS-station.

Overdracht

Vraagprijs
€ 400.000 k.k.
Prijs per m²
€ 2.516
Aangeboden sinds
16-02-2026
Status
Beschikbaar
Beschikbaar
Per direct

Oppervlakte en inhoud

Woonoppervlakte
159 m²
Perceeloppervlakte
132 m²

Bouw

Type woning
Huis
Soort woning
Tussenwoning (rijtjeshuis), Eengezinswoning
Soort bouw
Bestaande bouw
Bouwjaar
1970

Indeling

Aantal kamers
7
Aantal slaapkamers
6
Aantal badkamers
2

Buitenruimte

Dakterras
Niet aanwezig

Energie

Energielabel
C
Meld een probleem met deze woning