Contact met de makelaar

Deze woning is gevonden buiten ons eigen netwerk. Met de knop hieronder kom je direct bij de aanbieder terecht.

Nieuw

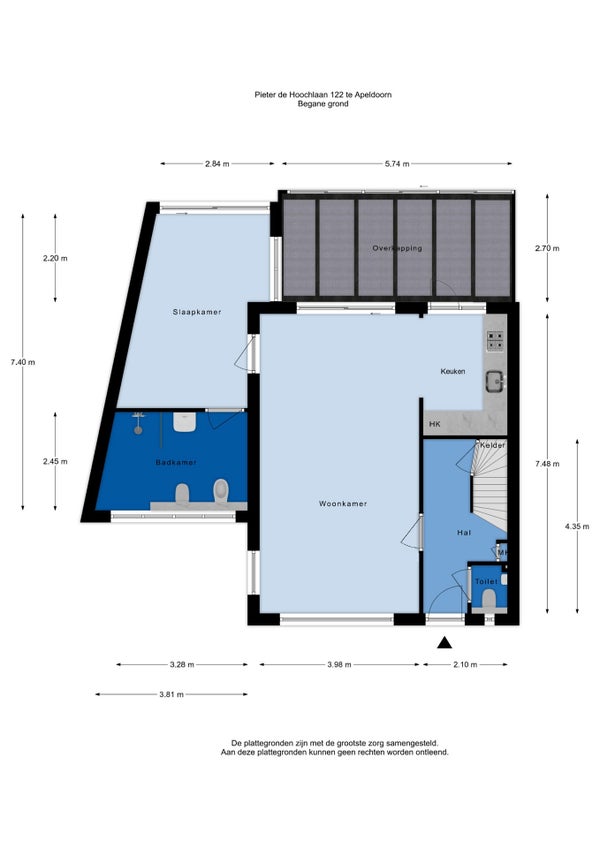
Pieter de Hoochlaan 122

Bekijk kaart
7312 PN Apeldoorn (Orden)
€ 569.000 k.k.
  • 135 m²
  • 6 kamers
  • 1966

Samenvatting

  • Deze woning wordt sinds 25 oktober 2025 aangeboden door Van Vliet Makelaardij - Apeldoorn;
  • De hoekwoning heeft een woonoppervlakte van 135 m² en beschikt over 6 kamers, waarvan 5 slaapkamers;
  • De woning is gebouwd In 1966 en ligt in de buurt Orden in Apeldoorn;
  • De woning beschikt onder andere over de volgende voorzieningen: Bad, Kabel TV, Dakkapel, Glasvezelaansluiting, Douche, Schuifdeuren, Toilet.

Beschrijving

Overdracht

Vraagprijs
€ 569.000 k.k.
Aangeboden sinds
25-10-2025
Status
Beschikbaar
Beschikbaar
In overleg
Bijzonderheden
Mindervalide woning, Seniorenwoning
Onderhoudsstaat
Goed

Oppervlakte en inhoud

Woonoppervlakte
135 m²
Perceeloppervlakte
293 m²
Inhoud
425 m³

Bouw

Type woning
Huis
Soort woning
Hoekwoning, Eengezinswoning
Soort bouw
Bestaande bouw
Bouwjaar
1966
Ligging
  • Aan een rustige weg
  • Aan een park
  • In een woonwijk
  • In bosrijke omgeving
  • Beschut gelegen
  • Vrij uitzicht

Indeling

Aantal kamers
6
Aantal slaapkamers
5
Aantal badkamers
2
Aantal woonlagen
4
Voorzieningen
  • Bad
  • Kabel TV
  • Dakkapel
  • Glasvezelaansluiting
  • Douche
  • Schuifdeuren
  • Toilet

Buitenruimte

Balkon
Aanwezig
Tuin
Aanwezig (115 m², gelegen op het noorden)
Tuinbeschrijving
achtertuin, voortuin
Dakterras
Niet aanwezig

Energie

Isolatie
Dubbele beglazing, Vloerisolatie, Volledig geïsoleerd, HR glas, Dakisolatie, Muurisolatie
Verwarming
CV-ketel, Gedeeltelijke vloerverwarming, Warmtepomp
Warm water
CV-ketel
Cv-ketel
HR (Gas, uit 2014, Eigendom)
Energielabel
A

Bergruimte

Schuur/Berging
Aanwezig
Omschrijving
Vrijstaand steen

Parkeergelegenheid

Aanwezig
Ja
Soort parkeergelegenheid
Op eigen terrein

Garage

Aanwezig
Nee
Meld een probleem met deze woning
Contact met de makelaar Bel