Contact met de aanbieder

Deze woning is gevonden buiten ons eigen netwerk. Via de knop hieronder ga je direct naar de website van de aanbieder.

Duveldlaan 12

Bekijk kaart
5944 PD Arcen (Verspreide huizen Arcen)
€ 1.595.000 k.k.
  • 354 m²
  • 6 kamers
  • 2020

Samenvatting

  • Deze woning wordt sinds 26 februari 2026 aangeboden door Hauzer & Partners;
  • De tussenwoning heeft een woonoppervlakte van 354 m² en beschikt over 6 kamers, waarvan 3 slaapkamers;
  • De woning is gebouwd In 2020 en ligt in de buurt Verspreide huizen Arcen in Arcen.

Beschrijving

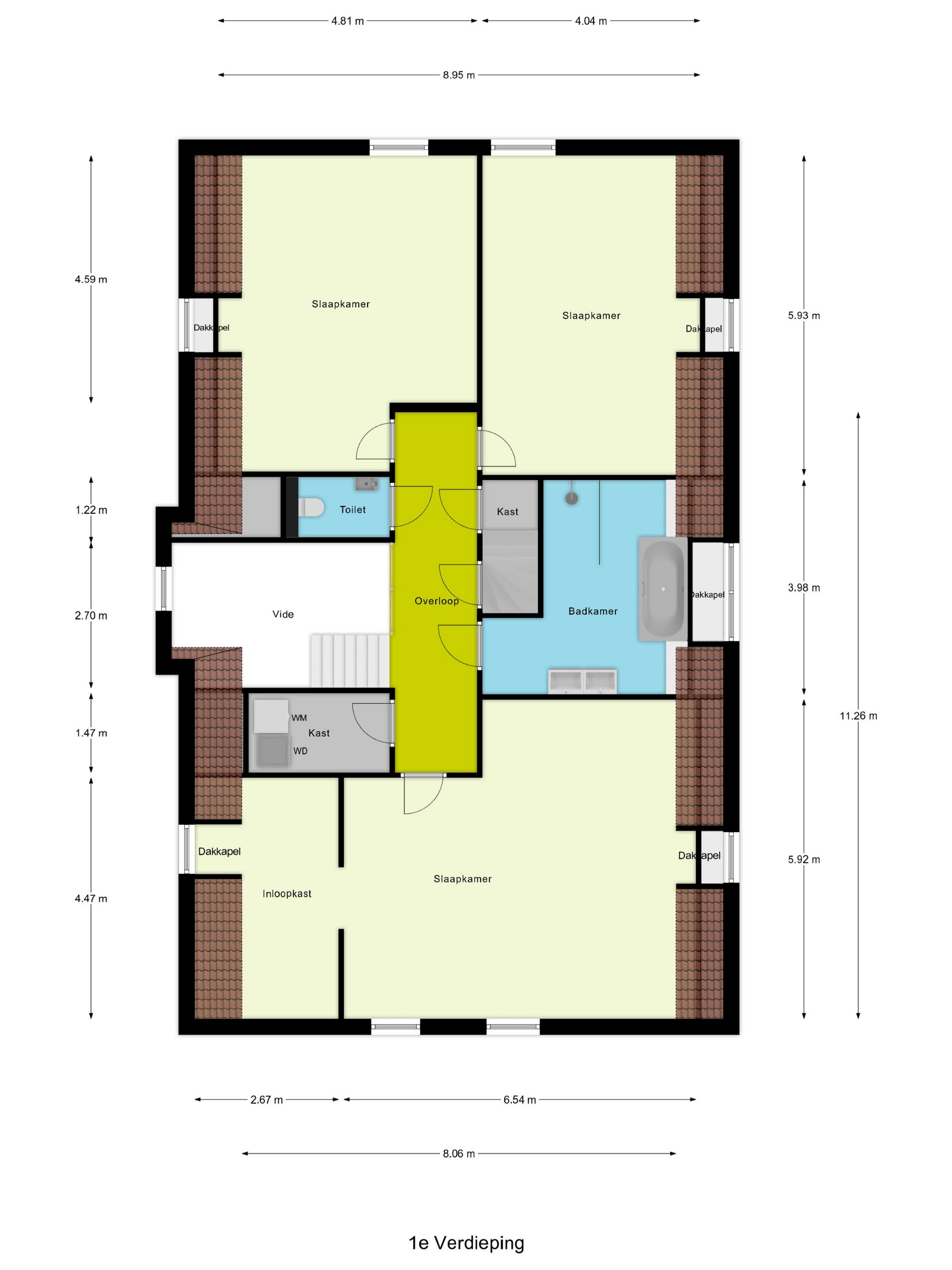
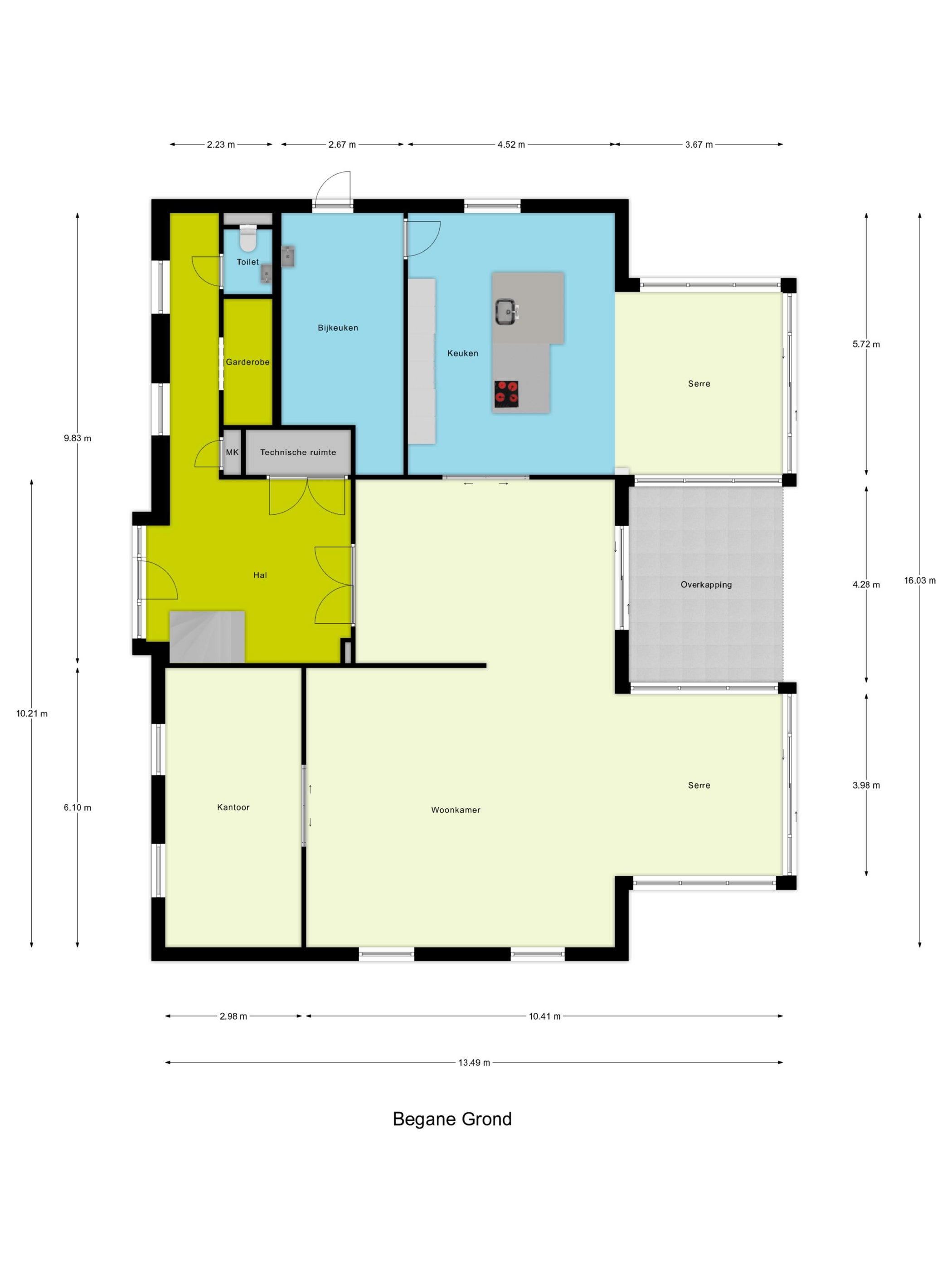
Deze villa, gelegen in het mooie Villa Park Arcen, biedt een schitterend uitzicht op het meer en is gebouwd in 2020. Met een woonoppervlakte van 354 m² en een perceel van 2531 m², heeft de villa 6 kamers en is uitstekend onderhouden. Je komt binnen via een ruime hal met een vide, met toegang tot een riante woonkamer die is voorzien van grote glaspartijen. De grote leefkeuken beschikt over moderne apparatuur en een kookeiland. Op de eerste verdieping vind je 3 ruime slaapkamers, waaronder een masterbedroom met inloopkast, en een luxe badkamer. De tweede verdieping biedt multifunctionele ruimte. De fraai aangelegde tuin met terrassen en een zwemsteiger zorgt voor veel buitenplezier. Deze woning is perfect voor rustzoekers, dichtbij het charmante centrum van Arcen met voorzieningen, natuur en uitstekende verbindingen.

Overdracht

Vraagprijs
€ 1.595.000 k.k.
Prijs per m²
€ 4.506
Aangeboden sinds
26-02-2026
Status
Beschikbaar
Beschikbaar
Per direct

Oppervlakte en inhoud

Woonoppervlakte
354 m²
Perceeloppervlakte
2 m²

Bouw

Type woning
Huis
Soort woning
Tussenwoning (rijtjeshuis), Eengezinswoning
Soort bouw
Bestaande bouw
Bouwjaar
2020

Indeling

Aantal kamers
6
Aantal slaapkamers
3
Aantal badkamers
1

Buitenruimte

Dakterras
Niet aanwezig

Energie

Energielabel
A
Meld een probleem met deze woning