Contact met de makelaar

Deze woning is gevonden buiten ons eigen netwerk. Met de knop hieronder kom je direct bij de aanbieder terecht.

Nieuw

Koewei

Bekijk kaart
6843 ZJ Arnhem (Elderhof)
€ 545.000 k.k.
  • 142 m²
  • 6 kamers
  • 1977

Samenvatting

  • Deze woning wordt sinds 26 januari 2026 aangeboden door PUNTMAN - Jouw Excellent NVM Makelaar!;
  • De tussenwoning heeft een woonoppervlakte van 142 m² en beschikt over 6 kamers, waarvan 4 slaapkamers;
  • De woning is gebouwd In 1977 en ligt in de buurt Elderhof in Arnhem.

Beschrijving

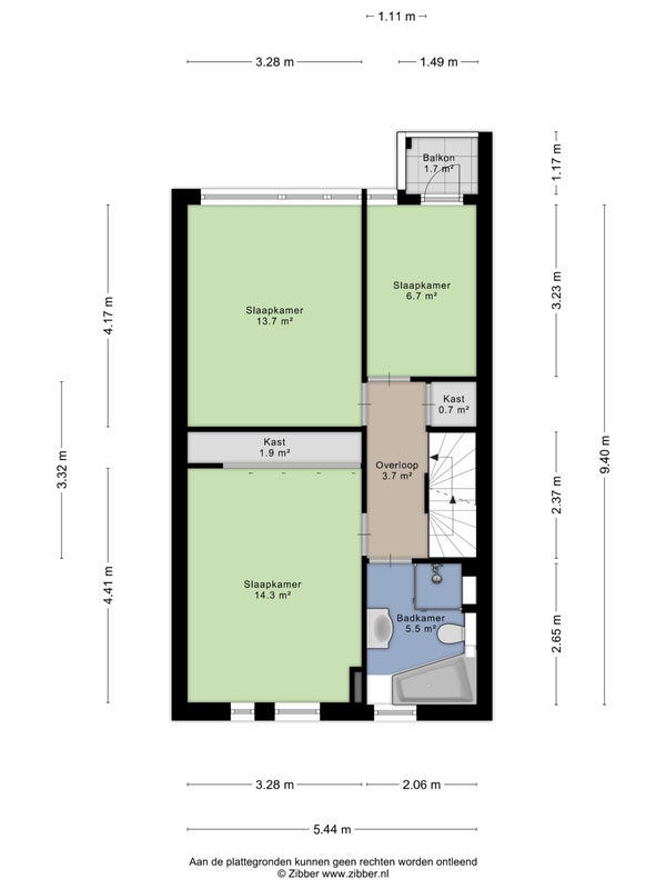
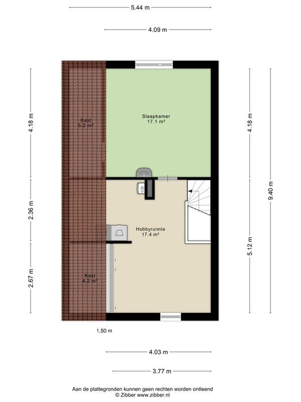
Deze fraaie twee-onder-een-kapwoning aan het water biedt unieke woonruimte en een vrij gelegen tuin. Het hele jaar door geniet u hier van de natuur met optimale privacy, zowel binnen als buiten. De goed onderhouden woning heeft een woonoppervlakte van 142 m², beschikt over vier ruime slaapkamers en een comfortabele woonkamer met houtkachel. De open keuken is volledig uitgerust en direct toegankelijk naar de zonnige tuin. Op de eerste verdieping zijn drie slaapkamers en een lichte badkamer met ligbad en douche. De tweede verdieping biedt een extra slaapkamer en hobbyruimte. De woning heeft dak-, muur- en vloerisolatie, 14 zonnepanelen en een energielabel A. Nabij het winkelcentrum en goed bereikbaar met openbaar vervoer.

Overdracht

Vraagprijs
€ 545.000 k.k.
Aangeboden sinds
26-01-2026
Status
Beschikbaar
Beschikbaar
Per direct

Oppervlakte en inhoud

Woonoppervlakte
142 m²
Perceeloppervlakte
220 m²

Bouw

Type woning
Huis
Soort woning
Tussenwoning (rijtjeshuis), Eengezinswoning
Soort bouw
Bestaande bouw
Bouwjaar
1977

Indeling

Aantal kamers
6
Aantal slaapkamers
4
Aantal badkamers
1

Buitenruimte

Dakterras
Niet aanwezig

Energie

Energielabel
A
Meld een probleem met deze woning