Contact met de aanbieder

Deze woning is gevonden buiten ons eigen netwerk. Via de knop hieronder ga je direct naar de website van de aanbieder.

Nieuw

Donge 6

Bekijk kaart
2991 RG Barendrecht (Noord 4)
€ 450.000 k.k.
  • 126 m²
  • 5 kamers
  • 1968

Samenvatting

  • Deze woning wordt sinds 3 maart 2026 aangeboden door Huijgen Makelaardij B.V.;
  • De tussenwoning heeft een woonoppervlakte van 126 m² en beschikt over 5 kamers, waarvan 4 slaapkamers;
  • De woning is gebouwd In 1968 en ligt in de buurt Noord 4 in Barendrecht.

Beschrijving

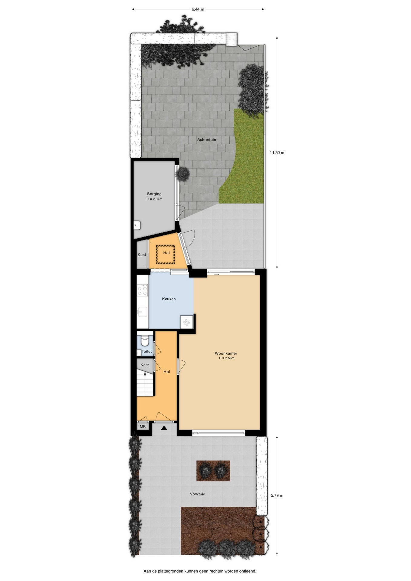
Deze ruime en moderne eengezinswoning biedt 4 slaapkamers en een zonnige achtertuin, gelegen aan een rustige weg met alle voorzieningen en het NS-station op loopafstand. De woning is smaakvol afgewerkt met hoogwaardige vloerbedekking en heeft een ruime woonkamer met open keuken. De achtertuin is ca. 640 cm breed en 1100 cm diep, zonder directe achterburen, en beschikt over een stenen fietsenberging en een tuinpoort naar het achterom.

De indeling omvat een ontvangsthal, een lichte woonkamer met schuifpui naar de tuin, 3 slaapkamers en een moderne badkamer op de eerste verdieping, en een zeer ruime 4e slaapkamer op de tweede verdieping met dakkapel. De woning is goed geïsoleerd, heeft 6 zonnepanelen en energielabel B. Kortom, een degelijk gezinshuis, op slechts 3 minuten van het station. 

Overdracht

Vraagprijs
€ 450.000 k.k.
Prijs per m²
€ 3.571
Aangeboden sinds
03-03-2026
Status
Beschikbaar
Beschikbaar
Per direct

Oppervlakte en inhoud

Woonoppervlakte
126 m²
Perceeloppervlakte
160 m²

Bouw

Type woning
Huis
Soort woning
Tussenwoning (rijtjeshuis), Eengezinswoning
Soort bouw
Bestaande bouw
Bouwjaar
1968

Indeling

Aantal kamers
5
Aantal slaapkamers
4
Aantal badkamers
1

Buitenruimte

Dakterras
Niet aanwezig

Energie

Energielabel
B
Meld een probleem met deze woning