Contact met de makelaar

Deze woning is gevonden buiten ons eigen netwerk. Met de knop hieronder kom je direct bij de aanbieder terecht.

Nieuw

Pater Vogelsstraat 49

Bekijk kaart
5741 JE Beek en Donk (Beek)
€ 357.000 k.k.
  • 81 m²
  • 4 kamers
  • 1950

Samenvatting

  • Deze woning wordt sinds 28 januari 2026 aangeboden door Van den Hurk Makelaars;
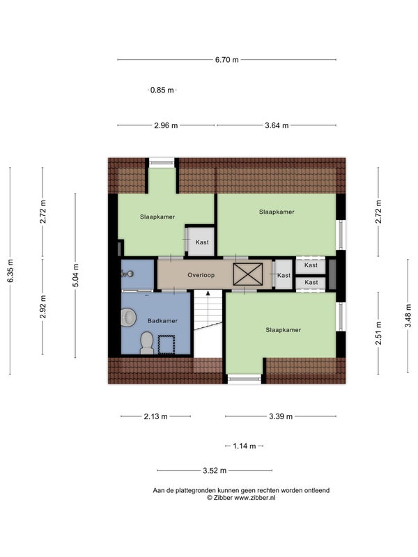
  • De tussenwoning heeft een woonoppervlakte van 81 m² en beschikt over 4 kamers, waarvan 3 slaapkamers;
  • De woning is gebouwd In 1950 en ligt in de buurt Beek in Beek en Donk.

Beschrijving

Deze karakteristieke 2/1 kapwoning bevindt zich op een groot perceel van 395 m², vlakbij het gezellige Heuvelplein. De woning, gebouwd in 1950, heeft een gebruiksoppervlakte van 81 m² en biedt een L-vormige woonkamer, nette keuken, bijkeuken, 3 slaapkamers en een badkamer. De woonkamer is voorzien van een houten vloer, en de keuken is uitgerust met een 4-pits gaskookplaat en diverse inbouwapparatuur. Op de eerste verdieping zijn er dakkapellen en de badkamer heeft een inloopdouche. Middels een vlizotrap is de zolder bereikbaar. De achtertuin van 28 meter diep is op het zuiden gericht en heeft een vrijstaande houten berging. De woning is verder energiezuinig dankzij dakisolatie en zonnepanelen.

Overdracht

Vraagprijs
€ 357.000 k.k.
Aangeboden sinds
28-01-2026
Status
Beschikbaar
Beschikbaar
Per direct

Oppervlakte en inhoud

Woonoppervlakte
81 m²
Perceeloppervlakte
395 m²

Bouw

Type woning
Huis
Soort woning
Tussenwoning (rijtjeshuis), Eengezinswoning
Soort bouw
Bestaande bouw
Bouwjaar
1950

Indeling

Aantal kamers
4
Aantal slaapkamers
3
Aantal badkamers
1

Buitenruimte

Dakterras
Niet aanwezig

Energie

Energielabel
C
Meld een probleem met deze woning