- 110 m²
- 5 kamers
- 2017
Samenvatting
- Deze woning wordt sinds 29 oktober 2025 aangeboden door Van den Hurk Makelaars;
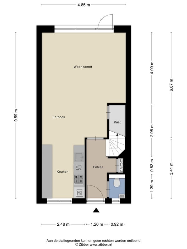
- De tussenwoning heeft een woonoppervlakte van 110 m² en beschikt over 5 kamers, waarvan 4 slaapkamers;
- De woning is gebouwd In 2017 en ligt in de buurt Beek in Beek en Donk;
- De woning beschikt onder andere over de volgende voorzieningen: Kabel TV, Glasvezelaansluiting, Mechanische ventilatie, Buitenzonwering, Rolluiken, Douche, Toilet, Wasruimte.
Beschrijving
Meer woninginformatie bekijken?
Log in of registreer gratis.
Overdracht
- Vraagprijs
- € 424.000 k.k.
- Aangeboden sinds
- 29-10-2025
- Status
- Beschikbaar
- Beschikbaar
- In overleg
- Onderhoudsstaat
- Goed
Oppervlakte en inhoud
- Woonoppervlakte
- 110 m²
- Perceeloppervlakte
- 112 m²
- Inhoud
- 391 m³
Bouw
- Type woning
- Huis
- Soort woning
- Tussenwoning (rijtjeshuis), Eengezinswoning
- Soort bouw
- Bestaande bouw
- Bouwjaar
- 2017
- Ligging
- 
                                        
                                                                    
                        - Aan een rustige weg
- In een woonwijk
 
Indeling
- Aantal kamers
- 5
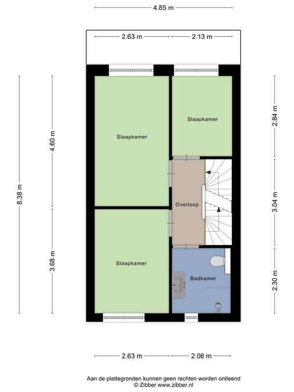
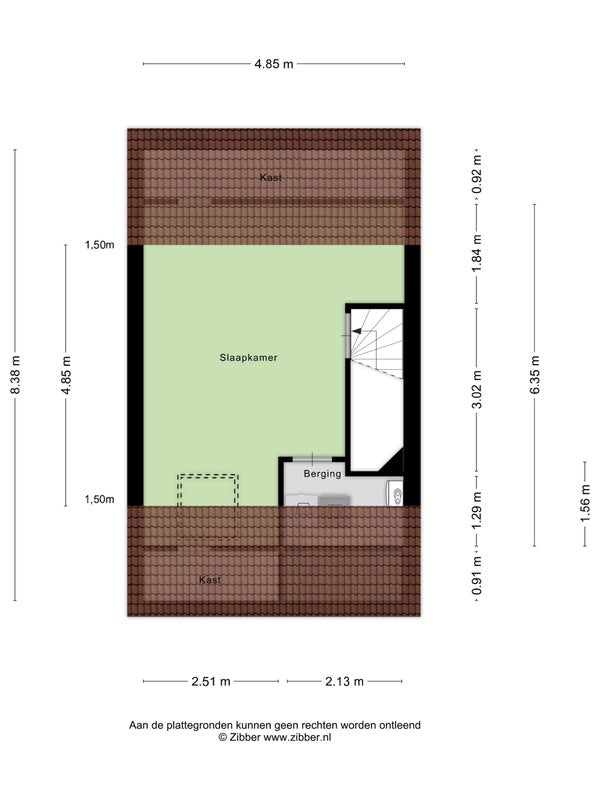
- Aantal slaapkamers
- 4
- Aantal badkamers
- 1
- Aantal woonlagen
- 3
- Voorzieningen
- 
                                        
                                                                                                                        
                        - Kabel TV
- Glasvezelaansluiting
- Mechanische ventilatie
- Buitenzonwering
- Rolluiken
- Douche
- Toilet
- Wasruimte
 
Buitenruimte
- Balkon
- Niet aanwezig
- Tuin
- Aanwezig (36 m², gelegen op het zuidoosten)
- Tuinbeschrijving
- achtertuin, voortuin
- Dakterras
- Niet aanwezig
Energie
- Isolatie
- Volledig geïsoleerd
- Verwarming
- CV-ketel
- Warm water
- CV-ketel
- Cv-ketel
- Intergas (Gas, uit 2017, Eigendom)
- Energielabel
- A
Bergruimte
- Schuur/Berging
- Aanwezig
- Omschrijving
- Vrijstaand steen
Parkeergelegenheid
- Aanwezig
- Ja
- Soort parkeergelegenheid
- Openbaar
Garage
- Aanwezig
- Nee
 
                 
                 
                 
                 
                 
                 
                 
                 
                 
                 
                 
                 
                 
                 
                 
                 
                 
                 
                 
                 
                 
                 
                 
                 
                 
                 
                 
                 
                 
                 
                 
                 
                