Contact met de makelaar

Deze woning is gevonden buiten ons eigen netwerk. Met de knop hieronder kom je direct bij de aanbieder terecht.

Nieuw

Westerland

Bekijk kaart
4617 MJ Bergen op Zoom (Bergse Plaat)
€ 549.000 k.k.
  • 130 m²
  • 6 kamers
  • 1994

Samenvatting

  • Deze woning wordt sinds 22 januari 2026 aangeboden door Baas Makelaars;
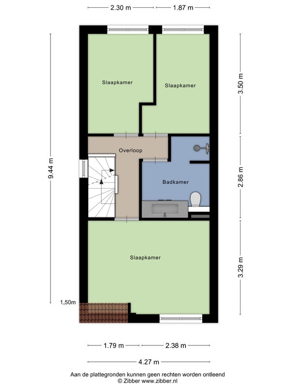
  • De tussenwoning heeft een woonoppervlakte van 130 m² en beschikt over 6 kamers, waarvan 4 slaapkamers;
  • De woning is gebouwd In 1994 en ligt in de buurt Bergse Plaat in Bergen op Zoom.

Beschrijving

Dit woonhuis, gelegen aan een rustige weg in Bergen op Zoom, biedt een vrij uitzicht. Gebouwd in 1994 met een totale oppervlakte van 300 m² en een woonoppervlakte van 130 m², omvat het zes kamers, waaronder vier slaapkamers en één badkamer met voorzieningen zoals een toilet, wastafelmeubel en inloopdouche. De woning beschikt over een achtertuin met een oppervlakte van 1 m², gelegen op het zuiden. Met energielabel A, is het huis volledig geïsoleerd en uitgerust met zonnepanelen, mechanische ventilatie, alarminstallatie, rolluiken en glasvezel. Het heeft ook een aangebouwde stenen berging met elektriciteit. Parkeren kan op eigen afgesloten terrein. De onderhoudstoestand is goed en de woning is bestemd voor permanente bewoning.

Overdracht

Vraagprijs
€ 549.000 k.k.
Aangeboden sinds
22-01-2026
Status
Beschikbaar
Beschikbaar
Per direct

Oppervlakte en inhoud

Woonoppervlakte
130 m²
Perceeloppervlakte
300 m²

Bouw

Type woning
Huis
Soort woning
Tussenwoning (rijtjeshuis), Eengezinswoning
Soort bouw
Bestaande bouw
Bouwjaar
1994

Indeling

Aantal kamers
6
Aantal slaapkamers
4
Aantal badkamers
1

Buitenruimte

Dakterras
Niet aanwezig

Energie

Energielabel
A
Meld een probleem met deze woning