Contact met de makelaar

Deze woning is gevonden buiten ons eigen netwerk. Met de knop hieronder kom je direct bij de aanbieder terecht.

Nieuw

Barbarahof 5

Bekijk kaart
6121 KP Born (Born)
€ 325.000 k.k.
  • 113 m²
  • 5 kamers
  • 1981

Samenvatting

  • Deze woning wordt sinds 18 oktober 2025 aangeboden door Wagemans Wonen;
  • De geschakelde woning heeft een woonoppervlakte van 113 m² en beschikt over 5 kamers, waarvan 3 slaapkamers;
  • De woning is gebouwd In 1981 en ligt in de buurt Born in Born;
  • De woning beschikt onder andere over de volgende voorzieningen: Airconditioning, Kabel TV, Douche, Bergruimte, Toilet, Wasruimte.

Beschrijving

Meer woninginformatie bekijken?

Log in of registreer gratis.

Overdracht

Vraagprijs
€ 325.000 k.k.
Aangeboden sinds
18-10-2025
Status
Beschikbaar
Beschikbaar
In overleg
Onderhoudsstaat
Goed

Oppervlakte en inhoud

Woonoppervlakte
113 m²
Perceeloppervlakte
315 m²
Inhoud
454 m³

Bouw

Type woning
Huis
Soort woning
Geschakelde woning, Eengezinswoning
Soort bouw
Bestaande bouw
Bouwjaar
1981
Ligging
  • In een woonwijk
  • Vrij uitzicht

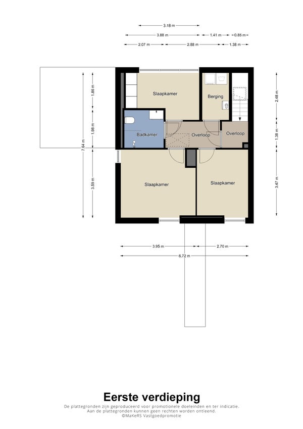
Indeling

Aantal kamers
5
Aantal slaapkamers
3
Aantal badkamers
1
Aantal woonlagen
3
Voorzieningen
  • Airconditioning
  • Kabel TV
  • Douche
  • Bergruimte
  • Toilet
  • Wasruimte

Buitenruimte

Balkon
Niet aanwezig
Tuin
Aanwezig (140 m², gelegen op het zuiden)
Tuinbeschrijving
achtertuin, voortuin
Dakterras
Niet aanwezig

Energie

Isolatie
HR glas, Muurisolatie
Verwarming
CV-ketel
Warm water
CV-ketel
Cv-ketel
Remeha (Gas, uit 2013, Eigendom)
Energielabel
C

Parkeergelegenheid

Aanwezig
Ja
Soort parkeergelegenheid
Openbaar

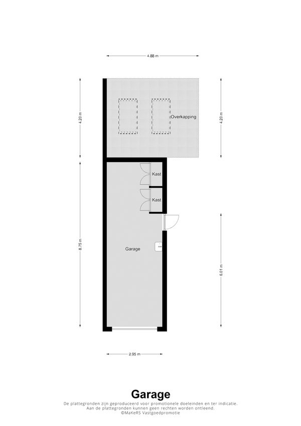
Garage

Aanwezig
Ja
Omschrijving
Vrijstaand steen
Meld een probleem met deze woning
Contact met de makelaar Bel