- 145 m²
- 8 kamers
- 1918
Samenvatting
- Deze woning wordt sinds 26 januari 2026 aangeboden door Linda Jansen makelaardij;
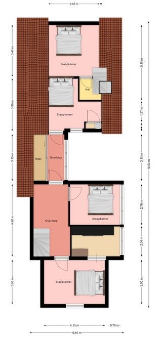
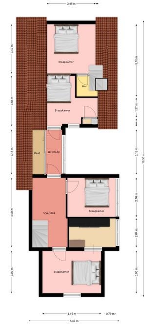
- De tussenwoning heeft een woonoppervlakte van 145 m² en beschikt over 8 kamers, waarvan 4 slaapkamers;
- De woning is gebouwd In 1918 en ligt in de buurt Broekerhaven in Bovenkarspel.
Beschrijving
Bij Broekerhavenweg 193 vindt u een indrukwekkende woning die in elk detail perfect is. Het huis ligt centraal in het gezellige Bovenkarspel, dicht bij de Broekerhaven en het Markermeer, waar vele recreatiemogelijkheden zijn. Met 145 m² woonoppervlakte en 8 kamers, waarvan 4 slaapkamers, biedt dit vrijstaande huis veel ruimte. Het is goed geïsoleerd, met energielabel B, zonnepanelen, en airconditioning. De sfeervolle woonkamer heeft openslaande deuren naar de tuin met een terrasoverkapping aan de zonnige westkant. De moderne keuken en de prachtig gerenoveerde badkamer zijn van alle gemakken voorzien. Op de eerste verdieping zijn vier slaapkamers en een handige inloopkast. Parkeren is openbaar en de locatie is perfect voor voorzieningen en scholen. Een heerlijke plek om te wonen!
Overdracht
- Vraagprijs
- € 479.500 k.k.
- Aangeboden sinds
- 26-01-2026
- Status
- Beschikbaar
- Beschikbaar
- Per direct
Oppervlakte en inhoud
- Woonoppervlakte
- 145 m²
- Perceeloppervlakte
- 216 m²
Bouw
- Type woning
- Huis
- Soort woning
- Tussenwoning (rijtjeshuis), Eengezinswoning
- Soort bouw
- Bestaande bouw
- Bouwjaar
- 1918
Indeling
- Aantal kamers
- 8
- Aantal slaapkamers
- 4
- Aantal badkamers
- 1
Buitenruimte
- Dakterras
- Niet aanwezig
Energie
- Energielabel
- B