Contact met de makelaar

Deze woning is gevonden buiten ons eigen netwerk. Met de knop hieronder kom je direct bij de aanbieder terecht.

Nieuw

Merelstraat

Bekijk kaart
4815 EE Breda (Belcrum)
€ 550.000 k.k.
  • 116 m²
  • 4 kamers
  • 1935

Samenvatting

  • Deze woning wordt sinds 19 januari 2026 aangeboden door Makelaarshuys Johanna en Gijs;
  • De tussenwoning heeft een woonoppervlakte van 116 m² en beschikt over 4 kamers, waarvan 2 slaapkamers;
  • De woning is gebouwd In 1935 en ligt in de buurt Belcrum in Breda.

Beschrijving

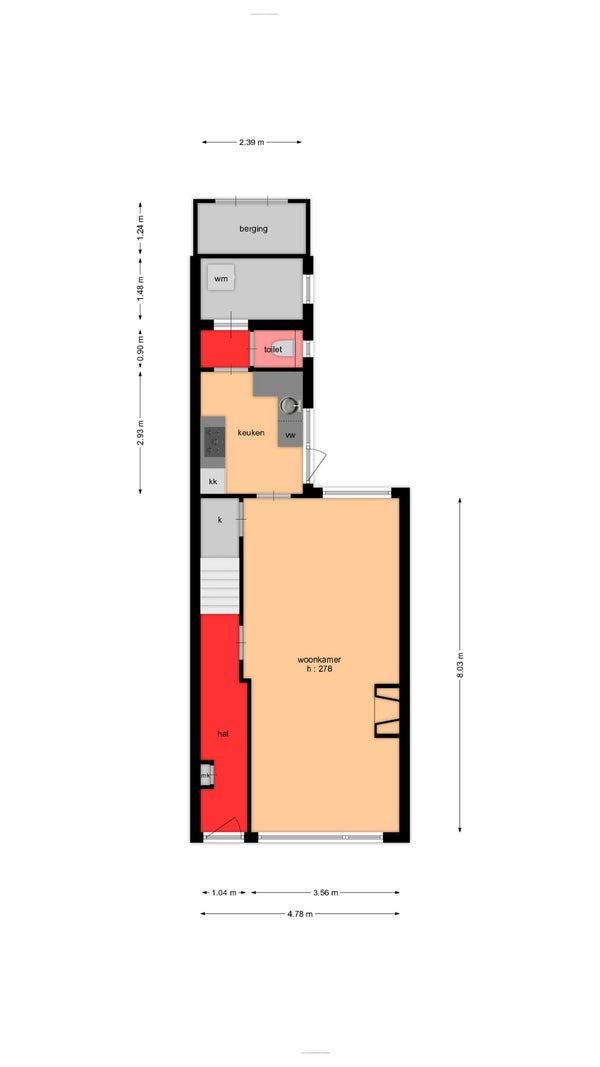
Welkom in deze jaren-30 woning in de populaire wijk Belcrum, waar sfeer en comfort samenkomen. Bij binnenkomst in de hal met originele Winckelmans tegels voel je direct de charme van dit huis. De lichte woonkamer met gasopen haard en glas-in-lood ramen biedt een warme sfeer, terwijl de keuken met Smeg oven perfect is voor de kookliefhebber. Op de eerste verdieping vind je een badkamer met ligbad en twee slaapkamers, elk met handige opbergmogelijkheden. De tweede verdieping herbergt een ruime derde slaapkamer met dakkapel en Velux-ramen. De zonnige achtertuin met houten berging en elektra is een fijne plek om te ontspannen. Deze woning heeft vier kamers, drie slaapkamers, en ligt aan een rustige weg, met een woonoppervlak van 116 m².

Overdracht

Vraagprijs
€ 550.000 k.k.
Aangeboden sinds
19-01-2026
Status
Beschikbaar
Beschikbaar
Per direct

Oppervlakte en inhoud

Woonoppervlakte
116 m²
Perceeloppervlakte
128 m²

Bouw

Type woning
Huis
Soort woning
Tussenwoning (rijtjeshuis), Eengezinswoning
Soort bouw
Bestaande bouw
Bouwjaar
1935

Indeling

Aantal kamers
4
Aantal slaapkamers
2
Aantal badkamers
1

Buitenruimte

Dakterras
Niet aanwezig

Energie

Energielabel
D
Meld een probleem met deze woning