Contact met de aanbieder

Deze woning is gevonden buiten ons eigen netwerk. Via de knop hieronder ga je direct naar de website van de aanbieder.

Nieuw

Effenseweg 99

Bekijk kaart
4838 BA Breda (Mastbos)
€ 995.000 k.k.
  • 232 m²
  • 7 kamers
  • 1950

Samenvatting

  • Deze woning wordt sinds 24 februari 2026 aangeboden door Makelaarshuys Johanna en Gijs;
  • De tussenwoning heeft een woonoppervlakte van 232 m² en beschikt over 7 kamers, waarvan 4 slaapkamers;
  • De woning is gebouwd In 1950 en ligt in de buurt Mastbos in Breda.

Beschrijving

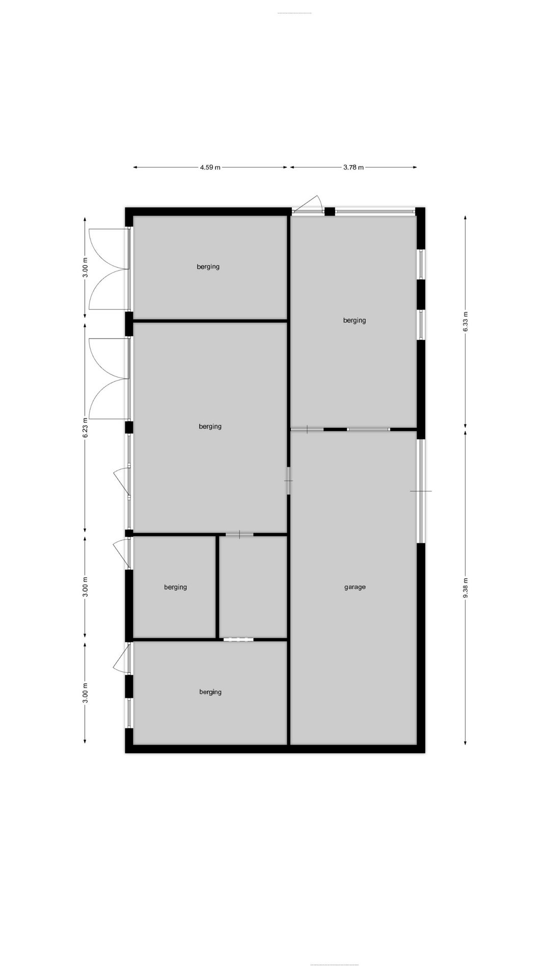
Deze vrijstaande bungalow aan de rand van Breda biedt veel ruimte en mogelijkheden. Gelegen in het buitengebied, heeft de woning vier slaapkamers, een moderne keuken en een ruime woonkamer met een sfeervolle haard. De indeling omvat ook een eetkamer met een houtkachel en een tussenhal naar het slaapgedeelte, waar een eenvoudige badkamer met dubbele wastafel te vinden is. Achter de woning bevinden zich diverse bijgebouwen, garages, en een grote tuin met privacy. De inpandige garage heeft technische ruimte voor verwarming en wasapparatuur. Een extra perceel met een tuinhuis is ook beschikbaar voor aankoop. Dit biedt mogelijkheden voor gastenverblijf of werk aan huis, ideaal voor buitenliefhebbers.

Overdracht

Vraagprijs
€ 995.000 k.k.
Prijs per m²
€ 4.289
Aangeboden sinds
24-02-2026
Status
Beschikbaar
Beschikbaar
Per direct

Oppervlakte en inhoud

Woonoppervlakte
232 m²
Perceeloppervlakte
4.870 m²

Bouw

Type woning
Huis
Soort woning
Tussenwoning (rijtjeshuis), Eengezinswoning
Soort bouw
Bestaande bouw
Bouwjaar
1950

Indeling

Aantal kamers
7
Aantal slaapkamers
4
Aantal badkamers
1

Buitenruimte

Dakterras
Niet aanwezig

Energie

Energielabel
B
Meld een probleem met deze woning