Contact met de makelaar

Deze woning is gevonden buiten ons eigen netwerk. Met de knop hieronder kom je direct bij de aanbieder terecht.

Valkenierslaan

Bekijk kaart
4834 CH Breda (Blauwe Kei)
€ 749.000 k.k.
  • 153 m²
  • 7 kamers
  • 1938

Samenvatting

  • Deze woning wordt sinds 7 weken aangeboden door Makelaarshuys Geraldine;
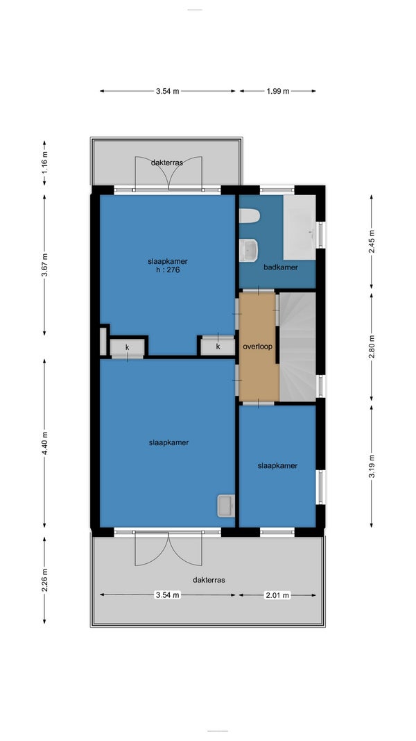
  • De tussenwoning heeft een woonoppervlakte van 153 m² en beschikt over 7 kamers, waarvan 5 slaapkamers;
  • De woning is gebouwd In 1938 en ligt in de buurt Blauwe Kei in Breda.

Beschrijving

Deze karakteristieke twee-onder-een-kapwoning uit 1938 aan de Valkenierslaan in Breda Zuid heeft veel te bieden voor een nieuwe eigenaar. De woning komt met authentieke elementen, die een kans bieden om sfeer en stijl terug te brengen. Op de begane grond valt de indeling op, met een ruime woonkamer gescheiden door schuifdeuren, een eetkamer, een open keuken en een bijkeuken met toegang tot de garage. De eerste verdieping huist drie slaapkamers, met de mogelijkheid om een vierde te creëren. De tweede verdieping, ooit een zelfstandige wooneenheid, heeft ruimte voor twee slaapkamers en een badkamer. Buiten zijn er een voortuin en een achtertuin op het noordwesten, grenzend aan sportvelden. Met een woonoppervlak van 153 m² en potentieel voor 6 slaapkamers, is deze woning perfect voor modernisering.

Overdracht

Vraagprijs
€ 749.000 k.k.
Aangeboden sinds
16-12-2025
Status
Beschikbaar
Beschikbaar
Per direct

Oppervlakte en inhoud

Woonoppervlakte
153 m²
Perceeloppervlakte
318 m²

Bouw

Type woning
Huis
Soort woning
Tussenwoning (rijtjeshuis), Eengezinswoning
Soort bouw
Bestaande bouw
Bouwjaar
1938

Indeling

Aantal kamers
7
Aantal slaapkamers
5
Aantal badkamers
2

Buitenruimte

Dakterras
Niet aanwezig

Energie

Energielabel
E
Meld een probleem met deze woning