Contact met de makelaar

Deze woning is gevonden buiten ons eigen netwerk. Met de knop hieronder kom je direct bij de aanbieder terecht.

Nieuw

Hoogeveenseweg 9435 TC

Bekijk kaart
9435 TC Bruntinge (Verspreide huizen de Broekstreek)
€ 650.000 k.k.
  • 175 m²
  • 5 kamers
  • 2025

Samenvatting

  • Deze woning wordt sinds 27 januari 2026 aangeboden door ERA Makelaardij Het Raadhuis;
  • De tussenwoning heeft een woonoppervlakte van 175 m² en beschikt over 5 kamers, waarvan 4 slaapkamers;
  • De woning is gebouwd In 2025 en ligt in de buurt Verspreide huizen de Broekstreek in Bruntinge.

Beschrijving

Embark on the journey to create your dream home in Bruntinge, situated on a beautiful 1758m² plot. This buildable site allows for a detached country house with a barn. Already available are essential utilities, simplifying the process for you. An architect has prepared a design for a lovely 175m² rural-style home, complete with a preliminary cost estimate. Should you desire a different design, the architect is ready to assist.

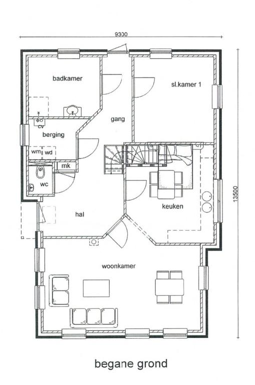
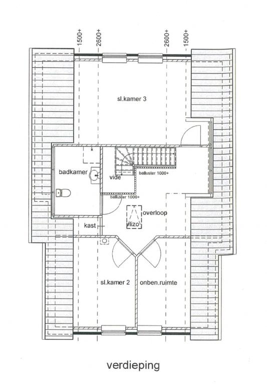
The planned layout includes a ground floor with an entrance hall, separate toilet, utility room, living room, a semi-open kitchen, one bedroom, and a bathroom, along with three additional bedrooms and another bathroom on the first floor. The second floor features a storage loft.

Nestled in nature with expansive views, this location is merely 5 minutes from the lively towns of Westerbork and Beilen, offering all necessary amenities.

Overdracht

Vraagprijs
€ 650.000 k.k.
Aangeboden sinds
27-01-2026
Status
Beschikbaar
Beschikbaar
Per direct

Oppervlakte en inhoud

Woonoppervlakte
175 m²
Perceeloppervlakte
1.758 m²

Bouw

Type woning
Huis
Soort woning
Tussenwoning (rijtjeshuis), Eengezinswoning
Soort bouw
Bestaande bouw
Bouwjaar
2025

Indeling

Aantal kamers
5
Aantal slaapkamers
4
Aantal badkamers
2

Buitenruimte

Dakterras
Niet aanwezig

Energie

Energielabel
A+++
Meld een probleem met deze woning