Contact met de makelaar

Deze woning is gevonden buiten ons eigen netwerk. Met de knop hieronder kom je direct bij de aanbieder terecht.

Nieuw

Prins Hendrikstraat 10

Bekijk kaart
6024 BD Budel-Dorplein (Budel-Dorplein)
€ 550.000 k.k.
  • 183 m²
  • 5 kamers
  • 1979

Samenvatting

  • Deze woning wordt sinds 27 januari 2026 aangeboden door Laenen Makelaardij | VerschilMakelaar;
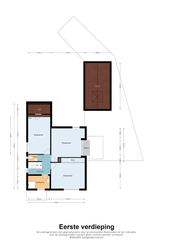
  • De tussenwoning heeft een woonoppervlakte van 183 m² en beschikt over 5 kamers, waarvan 4 slaapkamers;
  • De woning is gebouwd In 1979 en ligt in de buurt Budel-Dorplein in Budel-Dorplein.

Beschrijving

In het rustige Budel-Dorplein vind je deze vrijstaande woning uit 1979 aan de Prins Hendrikstraat 10. De woning biedt veel ruimte en comfort, met vier ruime slaapkamers en een vernieuwde badkamer met inloopdouche. De sfeervolle woonkamer, met gashaard en een schuifpui naar de grote tuin, zorgt voor een fijn binnen-buiten gevoel. De keuken is voorzien van moderne inbouwapparatuur en biedt toegang tot een praktische berging.

Boven zijn drie slaapkamers met rolluiken, en de zolder biedt extra ruimte, perfect voor een hobbykamer of loge. De verzorgde tuin van 600 m² heeft meerdere terrassen en een vrijstaande garage met carport. Met voorzieningen in de nabijheid en natuur om de hoek, is dit een ideale gezinswoning. Kom eens kijken!

Overdracht

Vraagprijs
€ 550.000 k.k.
Aangeboden sinds
27-01-2026
Status
Beschikbaar
Beschikbaar
Per direct

Oppervlakte en inhoud

Woonoppervlakte
183 m²
Perceeloppervlakte
600 m²

Bouw

Type woning
Huis
Soort woning
Tussenwoning (rijtjeshuis), Eengezinswoning
Soort bouw
Bestaande bouw
Bouwjaar
1979

Indeling

Aantal kamers
5
Aantal slaapkamers
4
Aantal badkamers
1

Buitenruimte

Dakterras
Niet aanwezig

Energie

Energielabel
C
Meld een probleem met deze woning