Contact met de makelaar

Deze woning is gevonden buiten ons eigen netwerk. Met de knop hieronder kom je direct bij de aanbieder terecht.

Rijndal 105

Bekijk kaart
2904 DB Capelle aan den IJssel (Dalenbuurt)
€ 425.000 k.k.
  • 121 m²
  • 5 kamers
  • 1976

Samenvatting

  • Deze woning wordt sinds 5 januari 2026 aangeboden door Kok Makelaars;
  • De eindwoning heeft een woonoppervlakte van 121 m² en beschikt over 5 kamers, waarvan 4 slaapkamers;
  • De woning is gebouwd In 1976 en ligt in de buurt Dalenbuurt in Capelle aan den IJssel;
  • De woning beschikt onder andere over de volgende voorzieningen: Bad, Buitenzonwering, Rolluiken, Dakraam, Toilet.

Beschrijving

Een 5-kamer EENGEZINSWONING met achtertuin op het zuid/oosten en aan de voorzijde een carport met eigen parkeerplaats.

Deze woning is gelegen op een hoek en dient gemoderniseerd/gerenoveerd te worden.

De locatie van de woning is super, met Park Hitland en metrostation en winkelcentrum ‘de Terp’ om de hoek!

Zie onderstaande hoofdkenmerken met nadere omschrijving en de uitgebreide fotoreportage. Zelf sfeer proeven in de woning? Bel met Kok Makelaars voor een bezichtiging!

Hoofdkenmerken:

  • Ruime en lichte woonkamer met groot zij-raam (hoekligging)
  • Keukenruimte aan voorzijde
  • Badkamer met ligbad
  • 4 goed formaat slaapkamers
  • Achtertuin op het zuidoosten
  • Carport in voortuin met eigen parkeervoorziening
  • Opknap woning met potentie
  • Woonoppervlakte ca. 121 m²
  • Perceeloppervlakte ca. 144 m²
  • Eigen grond

Gelegen in de gewilde Dalenbuurt nabij volop voorzieningen op korte afstand, zoals overdekt winkelcentrum en metrostation ‘De Terp’, scholen, kinderdagverblijven, gezondheidszorg, recreatiegebied Park Hitland en uitvalswegen.

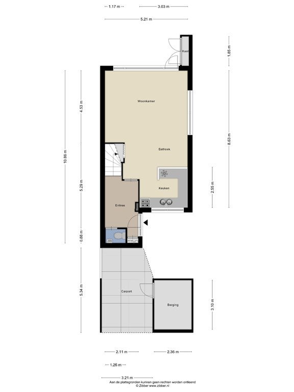
INDELING (voor de afmetingen, zie de plattegrondtekeningen)

Begane grond:
De begane grond is voorzien van een tegelvloer met vloerverwarming en rolluiken (handmatig en elektrisch).

Entree/hal, een ruime hal met een kunststof voordeur, biedt toegang tot de woonkamer, toilet, meterkast en gestoffeerde trapopgang naar de eerste verdieping.

Woonkamer, een ruime en lichte woonkamer door een groot zijraam dankzij de hoekligging, biedt toegang tot de keuken, kast onder de trap en de achtertuin.

Keuken, voorzien van een keukenblok in U-vormige opstelling, uitgerust met een gaskookplaat, afzuigkap en oven.

Toilet, voorzien van een staand closet en een fonteintje.

Eerste verdieping:
De eerste verdieping is voorzien van tapijt vloerafwerking, houten kozijnen met aluminium ramen (enkelglas) en rolluiken.

Overloop, met toegang tot 3 slaapkamers, badkamer, separaat toilet, en gestoffeerde trapopgang naar de tweede verdieping.

Slaapkamer 1, een ruime kamer aan de voorzijde, voorzien van een wastafel.
Slaapkamer 2, eveneens een ruime kamer, gelegen aan de achterzijde.
Slaapkamer 3, een kamer aan de achterzijde, voorzien van een kast met schuifdeuren.

Badkamer, geheel betegeld, voorzien van een ligbad met handdouche, badkamermeubel met wastafel en spiegel met verlichting, en een badkamerradiator.

Toilet, gedeeltelijk betegeld, voorzien van een staand closet en een fonteintje.

Tweede verdieping:
Overloop, voorzien van een dakraam aan de voor- en achterzijde en bergruimte achter de knieschotten aan de voor- en achterzijde, met toegang tot de wasmachineaansluiting, cv-ketel opstelling en slaapkamer 4.

Slaapkamer 4, een ruime kamer voorzien van een dakkapel aan de achterkant (dubbel glas) en bergruimte achter de kniesschotten aan de voorzijde.

Tuinen:
Achtertuin, met een gunstige ligging op het zuidoosten, voorzien van diverse groen, bestrating, elektrische zonwering, een tuinberging en een achterom.

Voortuin, voorzien van bestrating, bevat een carport en een vrijstaande stenen berging.

Bijzonderheden:

  • Cv-ketel Intergas HRE (2025) (huurtoestel) huurprijs: circa € 49,- per maand
  • Vernieuwde elektra groepenkast
  • Houten en kunststof kozijnen
  • Gedeeltelijk dubbele beglazing
  • Betonnen vloeren
  • Energielabel C
  • In de Koopovereenkomst zal een niet-bewoningsclausule worden opgenomen
  • Er zijn geen Vragenlijsten en/of Lijst van Zaken beschikbaar.
  • Bouwjaar ca. 1976

Oplevering: in overleg met verkoper, bij voorkeur op korte termijn.

Bij het samenstellen van deze verkoopinformatie en (plattegrond)tekeningen zijn we nauwkeurig te werk gegaan, aan onjuistheden en/of onvolkomenheden kunt u echter geen rechten ontlenen. Daarnaast aanvaardt de makelaar of zijn opdrachtgever geen aansprakelijkheid voor de in de verkoopinformatie en (plattegrond)tekeningen verstrekte informatie.

Reageer op tijd op nieuw woningaanbod

Meer dan de helft van de reacties komt binnen 48 uur. Ontvang direct notificaties bij nieuw aanbod en reageer sneller met Pararius+.

Probeer Pararius+ 14 dagen € 0,01

Overdracht

Vraagprijs
€ 425.000 k.k.
Aangeboden sinds
05-01-2026
Status
Beschikbaar
Beschikbaar
In overleg
Bijzonderheden
Seniorenwoning
Onderhoudsstaat
Redelijk

Oppervlakte en inhoud

Woonoppervlakte
121 m²
Perceeloppervlakte
144 m²
Inhoud
430 m³

Bouw

Type woning
Huis
Soort woning
Eindwoning, Eengezinswoning
Soort bouw
Bestaande bouw
Bouwjaar
1976
Ligging
  • In een woonwijk
  • Nabij het openbaar vervoer
  • Nabij een school

Indeling

Aantal kamers
5
Aantal slaapkamers
4
Aantal badkamers
1
Aantal woonlagen
3
Voorzieningen
  • Bad
  • Buitenzonwering
  • Rolluiken
  • Dakraam
  • Toilet

Buitenruimte

Balkon
Niet aanwezig
Tuin
Aanwezig (45 m², gelegen op het zuidoosten)
Tuinbeschrijving
achtertuin
Achterom aanwezig
Aanwezig
Dakterras
Niet aanwezig

Energie

Verwarming
CV-ketel, Gedeeltelijke vloerverwarming
Warm water
CV-ketel
Cv-ketel
Intergas HRE (Gas, uit 2025, Gehuurd)
Energielabel
C

Bergruimte

Schuur/Berging
Aanwezig

Parkeergelegenheid

Aanwezig
Ja
Soort parkeergelegenheid
Openbaar

Garage

Aanwezig
Nee
Meld een probleem met deze woning