Contact met de aanbieder

Deze woning is gevonden buiten ons eigen netwerk. Via de knop hieronder ga je direct naar de website van de aanbieder.

Nieuw

Nieuwe Uitleg 31

Bekijk kaart
7721 BZ Dalfsen (Vechtvliet-Leemcule)
€ 525.000 k.k.
  • 109 m²
  • 5 kamers
  • 1964

Samenvatting

  • Deze woning wordt sinds 23 februari 2026 aangeboden door Gjaltema Verzekeringen - Hypotheken - Makelaardij;
  • De tussenwoning heeft een woonoppervlakte van 109 m² en beschikt over 5 kamers, waarvan 4 slaapkamers;
  • De woning is gebouwd In 1964 en ligt in de buurt Vechtvliet-Leemcule in Dalfsen.

Beschrijving

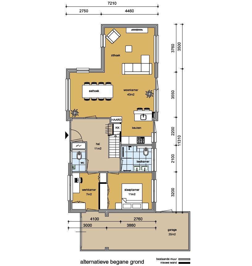
Deze royale vrijstaande woning, geschakeld met een garage, staat op een perceel van 448 m². De lichtinval in de woonkamer biedt mooi uitzicht en de woning is ideaal voor gelijkvloers wonen, met voorzieningen op de begane grond. Er is ook ruimte voor een gezinswoning, gezien de slaapkamers op de verdieping. De indeling omvat een ruime hal die toegang biedt tot de woonkamer en de dichte keuken, met mogelijkheden om de keuken open te maken. Op de eerste verdieping vind je een grote overloop en een slaapkamer met dakkapel. De tuin rondom de woning is zonovergoten en de ruime garage is bereikbaar vanuit de tuin. De woning dateert van 1964 en heeft een woonoppervlakte van 109 m². Energieklasse E en grotendeels dubbele beglazing zijn aanwezig. Gelegen in de gemeente Dalfsen, dicht bij het dorp en de A28.

Overdracht

Vraagprijs
€ 525.000 k.k.
Prijs per m²
€ 4.817
Aangeboden sinds
23-02-2026
Status
Beschikbaar
Beschikbaar
Per direct

Oppervlakte en inhoud

Woonoppervlakte
109 m²
Perceeloppervlakte
448 m²

Bouw

Type woning
Huis
Soort woning
Tussenwoning (rijtjeshuis), Eengezinswoning
Soort bouw
Bestaande bouw
Bouwjaar
1964

Indeling

Aantal kamers
5
Aantal slaapkamers
4
Aantal badkamers
1

Buitenruimte

Dakterras
Niet aanwezig

Energie

Energielabel
E
Meld een probleem met deze woning