Contact met de makelaar

Deze woning is gevonden buiten ons eigen netwerk. Met de knop hieronder kom je direct bij de aanbieder terecht.

Nieuw

Verdistraat 41

Bekijk kaart
5216 XG Den Bosch (Zuid)
€ 439.000 k.k.
  • 94 m²
  • 5 kamers
  • 1958

Samenvatting

  • Deze woning wordt sinds 21 oktober 2025 aangeboden door Van Cappellen Makelaardij;
  • De tussenwoning heeft een woonoppervlakte van 94 m² en beschikt over 5 kamers, waarvan 3 slaapkamers;
  • De woning is gebouwd In 1958 en ligt in de buurt Zuid in Den Bosch;
  • De woning beschikt onder andere over de volgende voorzieningen: Kabel TV, Buitenzonwering, Douche, Toilet.

Beschrijving

Meer woninginformatie bekijken?

Log in of registreer gratis.

Overdracht

Vraagprijs
€ 439.000 k.k.
Aangeboden sinds
21-10-2025
Status
Beschikbaar
Beschikbaar
In overleg
Onderhoudsstaat
Redelijk

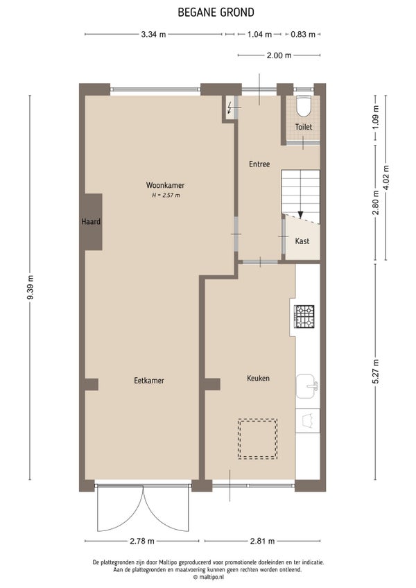
Oppervlakte en inhoud

Woonoppervlakte
94 m²
Perceeloppervlakte
118 m²
Inhoud
373 m³

Bouw

Type woning
Huis
Soort woning
Tussenwoning (rijtjeshuis), Eengezinswoning
Soort bouw
Bestaande bouw
Bouwjaar
1958
Ligging
  • Aan een rustige weg
  • In het centrum
  • In een woonwijk
  • Open gebied

Indeling

Aantal kamers
5
Aantal slaapkamers
3
Aantal badkamers
1
Aantal woonlagen
3
Voorzieningen
  • Kabel TV
  • Buitenzonwering
  • Douche
  • Toilet

Buitenruimte

Balkon
Niet aanwezig
Tuin
Aanwezig
Tuinbeschrijving
achtertuin, voortuin
Dakterras
Niet aanwezig

Energie

Isolatie
Gedeeltelijk dubbele beglazing
Verwarming
CV-ketel
Warm water
CV-ketel
Energielabel
D

Bergruimte

Schuur/Berging
Aanwezig
Omschrijving
Vrijstaand steen

Parkeergelegenheid

Aanwezig
Ja
Soort parkeergelegenheid
Betaald

Garage

Aanwezig
Nee
Meld een probleem met deze woning
Contact met de makelaar Bel