Contact met de makelaar

Deze woning is gevonden buiten ons eigen netwerk. Met de knop hieronder kom je direct bij de aanbieder terecht.

Zesde Slagen 7

Bekijk kaart
5233 VH Den Bosch (De Slagen)
€ 399.950 k.k.
  • 148 m²
  • 6 kamers
  • 1970

Samenvatting

  • Deze woning wordt sinds 8 weken aangeboden door Van Cappellen Makelaardij;
  • De tussenwoning heeft een woonoppervlakte van 148 m² en beschikt over 6 kamers, waarvan 4 slaapkamers;
  • De woning is gebouwd In 1970 en ligt in de buurt De Slagen in Den Bosch;
  • De woning beschikt onder andere over de volgende voorzieningen: Kabel TV, Douche, Bergruimte, Toilet, Wasruimte.

Beschrijving

Meer woninginformatie bekijken?

Log in of registreer gratis.

Overdracht

Vraagprijs
€ 399.950 k.k.
Aangeboden sinds
02-09-2025
Status
Beschikbaar
Beschikbaar
In overleg
Onderhoudsstaat
Redelijk

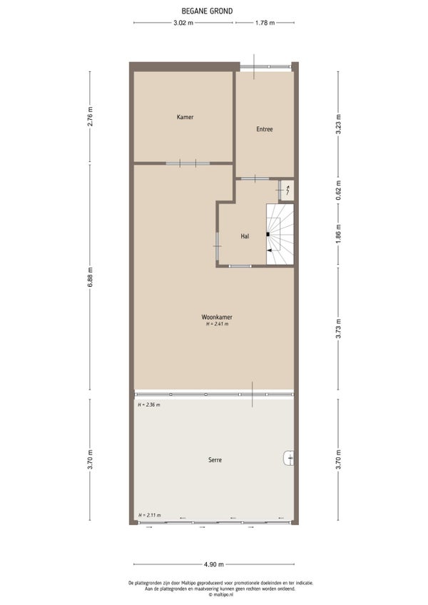
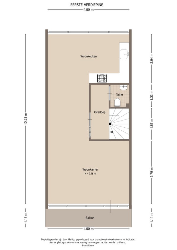
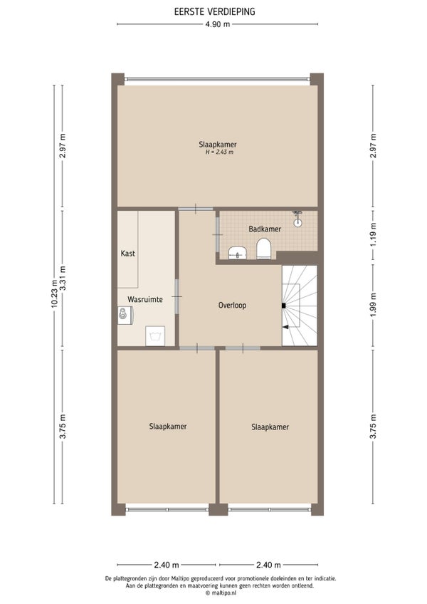
Oppervlakte en inhoud

Woonoppervlakte
148 m²
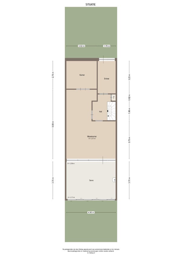
Perceeloppervlakte
119 m²
Inhoud
483 m³

Bouw

Type woning
Huis
Soort woning
Tussenwoning (rijtjeshuis), Eengezinswoning, listing.default.characteristic.drive-in
Soort bouw
Bestaande bouw
Bouwjaar
1970
Ligging
In een woonwijk

Indeling

Aantal kamers
6
Aantal slaapkamers
4
Aantal badkamers
1
Aantal woonlagen
3
Voorzieningen
  • Kabel TV
  • Douche
  • Bergruimte
  • Toilet
  • Wasruimte

Buitenruimte

Balkon
Aanwezig
Tuin
Aanwezig
Tuinbeschrijving
achtertuin, voortuin
Dakterras
Niet aanwezig

Energie

Isolatie
Dubbele beglazing, Vloerisolatie, Gedeeltelijk dubbele beglazing, Dakisolatie, Muurisolatie
Verwarming
CV-ketel
Warm water
CV-ketel
Energielabel
B

Bergruimte

Schuur/Berging
Aanwezig
Omschrijving
Inpandig

Parkeergelegenheid

Aanwezig
Ja
Soort parkeergelegenheid
Op eigen terrein
Omschrijving
Dubbele oprit

Garage

Aanwezig
Nee
Meld een probleem met deze woning
Contact met de makelaar Bel