Contact met de makelaar

Deze woning is gevonden buiten ons eigen netwerk. Met de knop hieronder kom je direct bij de aanbieder terecht.

Charlie Parkerstraat 35

Bekijk kaart
2551 KZ Den Haag (Nieuw Waldeck)
€ 445.000 k.k.
  • 93 m²
  • 5 kamers
  • 1981

Samenvatting

  • Deze woning wordt sinds 17 oktober 2025 aangeboden door Makelaars Korporaal & Bertels;
  • De hoekwoning heeft een woonoppervlakte van 93 m² en beschikt over 5 kamers, waarvan 3 slaapkamers;
  • De woning is gebouwd In 1981 en ligt in de buurt Nieuw Waldeck in Den Haag.

Beschrijving

Overdracht

Vraagprijs
€ 445.000 k.k.
Aangeboden sinds
17-10-2025
Status
Beschikbaar
Beschikbaar
In overleg
Onderhoudsstaat
Redelijk

Oppervlakte en inhoud

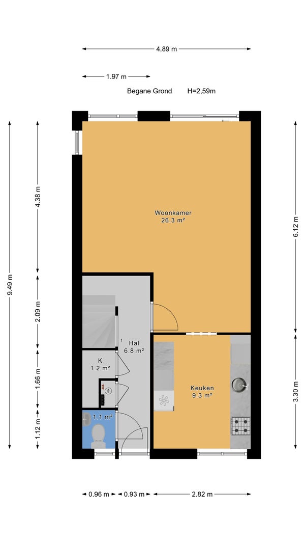
Woonoppervlakte
93 m²
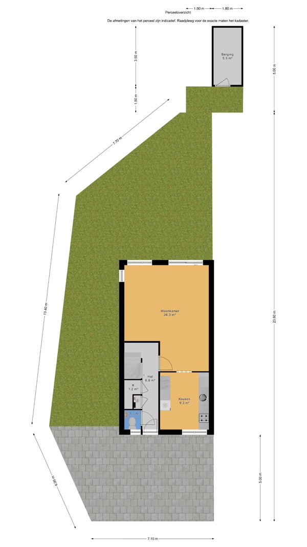
Perceeloppervlakte
195 m²
Inhoud
390 m³

Bouw

Type woning
Huis
Soort woning
Hoekwoning, Eengezinswoning
Soort bouw
Bestaande bouw
Bouwjaar
1981
Ligging
In een woonwijk

Indeling

Aantal kamers
5
Aantal slaapkamers
3
Aantal badkamers
1
Aantal woonlagen
3
Voorzieningen
  • Douche
  • Toilet

Buitenruimte

Balkon
Niet aanwezig
Tuin
Aanwezig (67 m², gelegen op het noordoosten)
Tuinbeschrijving
achtertuin, voortuin, zijtuin
Dakterras
Niet aanwezig

Energie

Isolatie
Dubbele beglazing, HR glas
Verwarming
CV-ketel
Warm water
CV-ketel
Cv-ketel
Nefit (Gas, uit 2015, Eigendom)
Energielabel
C

Bergruimte

Schuur/Berging
Aanwezig
Omschrijving
Vrijstaand steen

Parkeergelegenheid

Aanwezig
Ja
Soort parkeergelegenheid
Openbaar

Garage

Aanwezig
Nee
Meld een probleem met deze woning
Contact met de makelaar Bel